EasyManua.ls Logo

PRx Performance Profile PRO - Modified Ceiling Height Installation

Default Icon
11 pages
Print Icon
To Next Page IconTo Next Page
To Next Page IconTo Next Page
To Previous Page IconTo Previous Page
To Previous Page IconTo Previous Page
Loading...
3
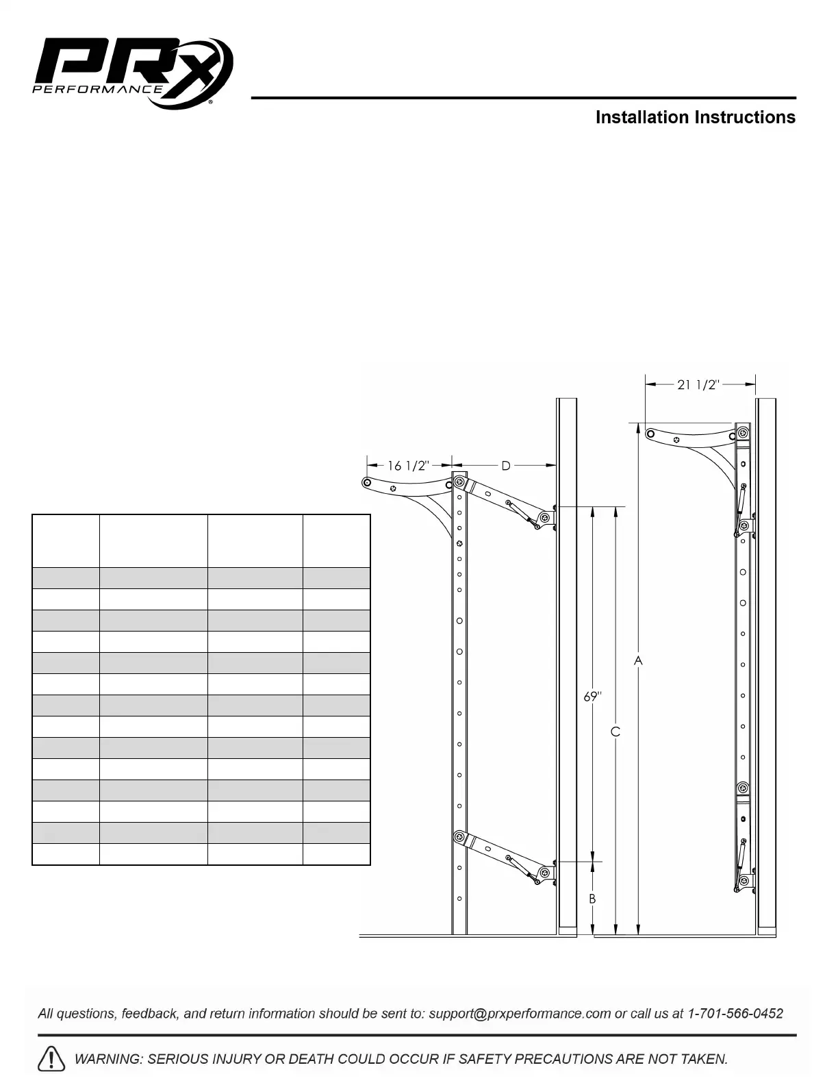
Modified Install
Figure 1: Modified Installation example: 105” Ceiling
Ceiling
Height
(A)
Lower
Bracket Top
Hole (B)
Rack
Depth
(D)
108''
21"
21.75"
107''
20''
21.75"
106''
19''
21.75"
105''
18''
21.5"
104''
17''
21.25"
103''
16
21"
102''
15''
20.75"
101''
14''
20.25"
100''
13''
19.75"
99''
12''
19.25"
98''
11''
18.75"
97''
10''
18"
96''
9''
17"
95''
8''
16"
Standard installation is designed for ceilings 108” or taller. If your ceiling is shorter than 108” please
refer to the table below and use the bracket hole height measurements that correspond to your ceiling
height.
Some modified installations will result in a shallower rack depth and linkage arms will be at an angle
when deployed. The linkage arms must be parallel to each other when the rack is installed to allow the
rack to fold correctly.

Related product manuals