EasyManua.ls Logo

Qualitrol 111L - Page 11

Default Icon
24 pages
Print Icon
To Next Page IconTo Next Page
To Next Page IconTo Next Page
To Previous Page IconTo Previous Page
To Previous Page IconTo Previous Page
Loading...
Electronic Temperature Monitor
9
Install a jumper wire (#18 AWG minimum) from supply power (TB1-19)
to the common terminal of the 4
th
(Trip) relay (TB1-2).
For units powered by DC input, connections should be made as follows:
The customer must provide a separate AC source for heater operation
and a terminal block for wiring connections.
The unit will be wired as noted above for 120/240 VAC with the
exception that the added terminal block will be used to supply the AC
power and be a substitute for terminals TB1-19 & TB1-21.
In the customer software, ensure that the device used to control the heater is in
non-failsafe condition, and that the unit is configured to operate the Trip relay
from ambient temperature.
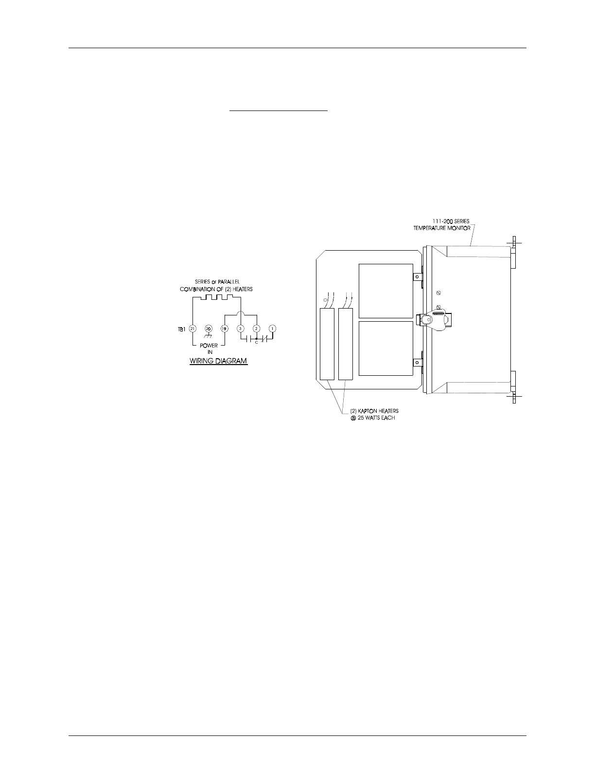
Figure 3a. Heater Installation and Wiring

Related product manuals