EasyManua.ls Logo

Radijator FK1 - Page 10

Radijator FK1
Print Icon
To Next Page IconTo Next Page
To Next Page IconTo Next Page
To Previous Page IconTo Previous Page
To Previous Page IconTo Previous Page
Loading...
Radijator Inženjering d.o.o, 36000 Kraljevo, Živojina Lazića - Solunca br.6, Srbija
tel. +381 36 399 140, fax. +381 36 399 150, http://www.radijator.rs
e-mail: radijator@radijator.rs
10
Utvrditi da li je stepen elektricne zastite u skladu sa karakteristikama prostorije u kojoj
ce kotao biti smesten
Zabranjeno je izlaganje kotla atmosferskim neprilikama.Sam kotao nije predvidjen za
spoljnu montazu i ne sadrzi sistem protiv smrzavanja.
Zabranjeno je zatvaranje ventilacionih otvora na prostoriji u kojoj se nalazi
kotao.Ventilacioni otvori su neophodni za pravilno sagorevanje
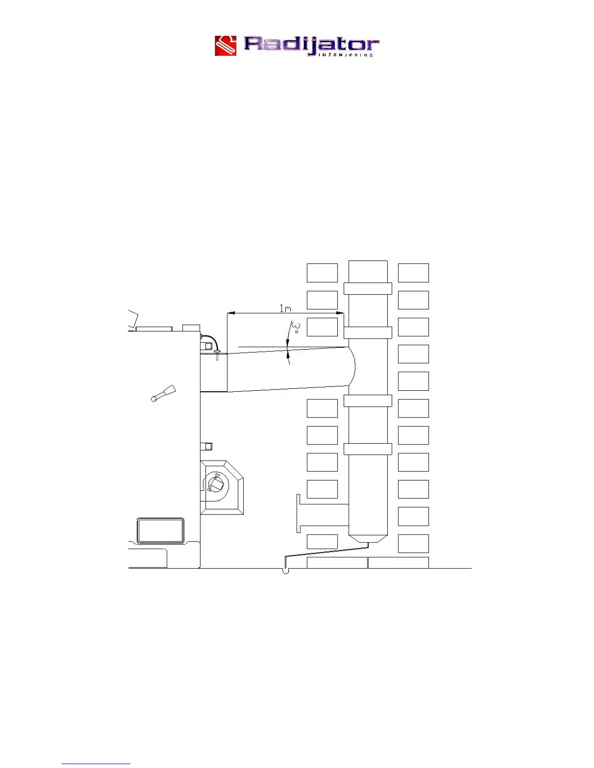
3.2.Priključenje na dimnjak
Najoptimalnije postavljanje kotla na dimnjacu je takvo da prava koja spaja centar izlaza
dimnih gasova iz kotla i centar prikljucenja na dimnjak bude u blagom usponu (do
3%)(pogledati skicu).
slika 7.Prikaz prikljucenja kotla na dimnjak
Treba izbegavati ako je moguce lukove,a ako nije onda je maksimalni broj lukova(2).Dimni
kanal od kotla do dimnajka pozeljno je izolivati,posebno ako ima lukova i duzih deonica.
Sam dimnjak treba da je napravljen od keramickih cevi,oko njih treba da je izolacija debljine
3-5cm i zadnji spoljni sloj je cigla ili specijalni dimnjacki elementi.