EasyManua.ls Logo

Radijator FK1 - Page 38

Radijator FK1
Print Icon
To Next Page IconTo Next Page
To Next Page IconTo Next Page
To Previous Page IconTo Previous Page
To Previous Page IconTo Previous Page
Loading...
Radijator Inženjering d.o.o, 36000 Kraljevo, Živojina Lazića - Solunca br.6, Srbija
tel. +381 36 399 140, fax. +381 36 399 150, http://www.radijator.rs
e-mail: radijator@radijator.rs
38
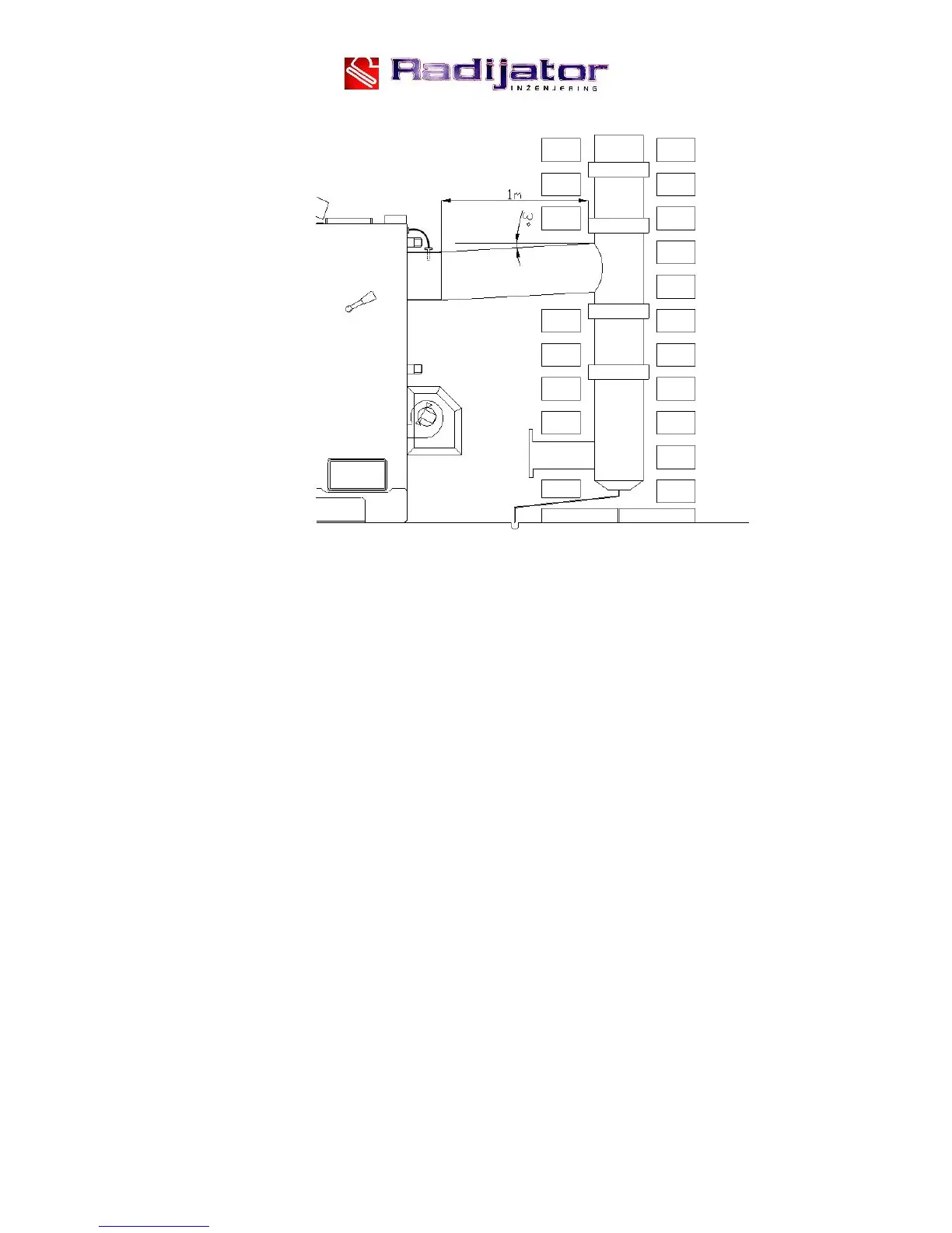
Figure 7. Connection to chimney
If possible, arcs should be avoided, but if not possible, then the maximum number of arcs is 2. The fume channel
from the boiler to the chimney, should desirebly be insulated, specially if it has arcs and longer sections.
On the smoke pipe, approximately 100mm from the flue outlet from boiler, a hole should be
drilled and a temperature gauge should be mounted for flue gas temperature measurings.
Without information about the temperature of flue gases there isn’t the automatic mode of the
boiler.
The chimney itself should be made of ceramic pipes, and around them there should be the
insulation of 3- 5cm thickness and the outer layer is of the bricks or special elements. If the
chimney is not from ceramic pipes but of bricks, the light opening area of such chimney shall
be 30 % higher than the surface of this ceramic pipes chimeny. Minimal sectional dimensions
of both chimneies and the minimum heights are given in table 1.
The chimney must have a door for cleaning and it must be well sealed. Chimney outlet on the
roof must be according to certain regulations. There are two cases: if the angle of the roof is
less than 12° and if the roof angle is bigger than 12 °. For angle less than 12 ° the height of
the chimney above the roof is 1 m and for the larger than 12 ° , then look at the sketch.

Related product manuals