EasyManua.ls Logo

Rainbow 170 HF - Page 49

Rainbow 170 HF
Print Icon
To Next Page IconTo Next Page
To Next Page IconTo Next Page
To Previous Page IconTo Previous Page
To Previous Page IconTo Previous Page
Loading...
49
2101A588
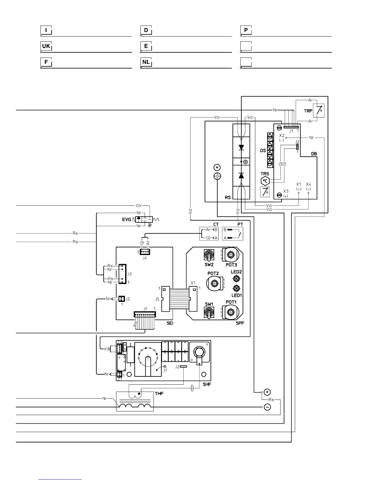
Schema elettrico
Wiring diagram
Schéma électrique
Schaltplan
Esquema eléctrico
Elektrisk skema
Esquema eléctrico
Elektiska schema
Elektriske skjema
S
N

Table of Contents