EasyManua.ls Logo

Rainfresh R830 - Installing the Pre-filter; Step-by-Step UV Unit Installation

Default Icon
20 pages
Print Icon
To Next Page IconTo Next Page
To Next Page IconTo Next Page
To Previous Page IconTo Previous Page
To Previous Page IconTo Previous Page
Loading...
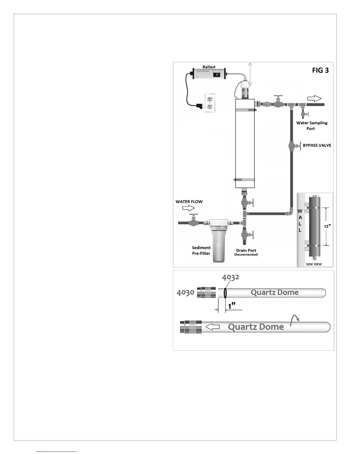
Installing the pre-filter
A 5 micron or finer filter must be installed before the UV system. Pre-filter (model FC100) is included with model R830F
only. Pre-filter is NOT included with R519 & R830 systems, but is available from the same retailer. We recommend
Rainfresh model FC100 or FC150 with solderless installation kit model CK1. Refer to Fig 2 for location of filter and follow
installation instructions included with filter.
Installing the UV unit.
1. Slide a mounting clamp (4033) under a
mounting base (4034) and screw the base on to
the wall (wall stud) with base screws (4035) as
shown in Fig. 3 & fig 3 side view. Use
appropriate wall anchors if not installing on wall
stud.
2. Using a level, vertically align other mounting
base at a distance of about 11-12 inches below
the first base. Mount the other base with the
second mounting clamp (clamp screws should
be in opposite directions).
3. Mount the UV disinfection chamber
(4000/4010) on the two bases and holding it
with one hand, tighten the mounting clamps
using a flat-head screwdriver or appropriate
socket wrench.
4. Mount the ballast (R830B/R519B) on the wall
slightly above the chamber with ballast
mounting screws (4044) (see Fig 3)
5. Install new plumbing using Fig 3 as reference of
how the final installation should look. The
inlet/outlet connections on the UV are 3/4
MNPT.
6. If you intend to drain the UV during winter to
prevent freezing, install a 3/4” copper tee at the
inlet of the UV and plumb in a ball valve and a
piece of copper pipe (See Fig 3)
7. Carefully unpack UV lamp (R519L/R830L) and
quartz dome (R519QD/R830QD). Note: Hold
lamp and dome by the ends with soft, dry
gloves or cloth. The gland nut O-ring (515) is in
the groove of the gland nut (factory-installed)
and the dome O-ring (4032) is in a separate plastic pack.
8. Gently slide the dome O-ring (4032) over the top (open end) of the quartz dome to about 1” from the open end.
Fig 4
9. Gently insert the quartz dome into the gland nut (4030) and gently rotate the dome while pushing in until it goes
past the nut O-ring (515) and touches the inside top end of the gland nut. See Fig 4 and 5.
Tip: Rotate dome while pushing IN
Fig 4
Leave min 24”
clearance on top
4
5

Other manuals for Rainfresh R830

Related product manuals