EasyManua.ls Logo

Ramsa WR-DA7 - Self Check Procedure; Wiring Diagram

Ramsa WR-DA7
83 pages
Print Icon
To Next Page IconTo Next Page
To Next Page IconTo Next Page
To Previous Page IconTo Previous Page
To Previous Page IconTo Previous Page
Loading...
– 21 –
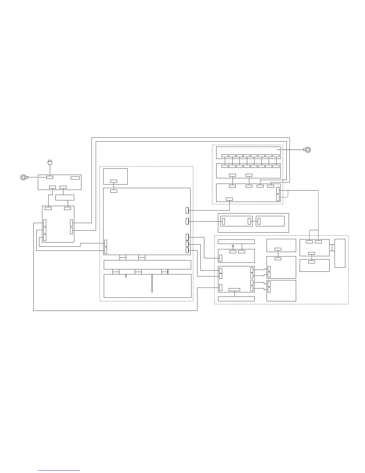
WR-SMPT
(OPTION)
POWER-1 BOARD
POWER-2 BOARD
MAIN BOARD
EXTENSION BUS
SLOT OPTION CARD
SLOT 1, 2 WR-ADAT, WR-TDIF
WR-AESS, WR-ADDA
SLOT 3 ONLY
WR-TNDM
AD/DA BOARD
WR-MTBR (OPTION)
INVERTER BOARD
LCD UNIT
FADER DRIVE
BOARD
INPUT SWITCH
BOARD
EFX BOARD
AD/DA BLOCK
PANEL BLOCK
MAIN BLOCK
TB BOARD
METER BOARD
FADER
21
INS BOARD
HA BOARD
CN51
YW30CKIT13W
YWRDA7L36 (E36)
YWRDA7L52 (E52)
YWRDA7L62A
(E62)
YWRDA7L63A
YWRDA7L63A
YWRDA7L53 (E53)
YWRDA7L64A (E64)
YWRDA7L53 (E53)
YWRDA7L52 (E52)
YW40ALJV15W (E33)
YWRDU07L01
YWRDA7L32
(E32)
YWRDA7L67
(E303)
YW17AKJV08W (E66)
YWRDA7L59A (E59)
YWRDA7L04
(E6)
YWRDA7L04
(E4)
YWRDA7L04
(E5)
YWRDA7L04
(E7)
YW40ALJV30W
(E2)
YWRDA7L01 (E1)
YWRDA7L65 (E65)
YW26CKIT08W
YWRDA7L58A (E58)
YWRDA7L58A (E58)
YWRDA7L54 (E54)
YWRDA7L56
(E56-E63) x 8
YWRDA7L55 (E55)
CN35
CN62
TRANSFORMER
CN63
FUSE
CN62 CN63
CN98
CN56
CN56
CN57
CN57
CN54
CN54
CN33
CN11-CN31
CN
SLOT1 SLOT2 SLOT3
CN
CN37
CN37
CN50
CN50
CN59
CN59
CN58CN99
CN97
CN97
CN66
CN303 CN302
CN66
CN
CN
CN
CN
CN33CN44CN32
CN32CN2CN1
CN7CN6CN5 CN4
CN7CN6CN5 CN4
CN65
CN1
CN64 CN36
CN36 CN64 CN65
CN52CN53
CN2
CN44
CN77
CN77
CN55
CN55
CN53 CN52
CN58CN99
CN58
CN58
CN59
CN59
CN60
CN60
CN61
CN61
CN62
CN62
CN63
CN63
21
WIRING DIAGRAM
HP BOARD
MONITOR VR
BOARD