EasyManua.ls Logo

Rangemaster 110 Ceramic - Page 35

Rangemaster 110 Ceramic
44 pages
Print Icon
To Next Page IconTo Next Page
To Next Page IconTo Next Page
To Previous Page IconTo Previous Page
To Previous Page IconTo Previous Page
Loading...
31
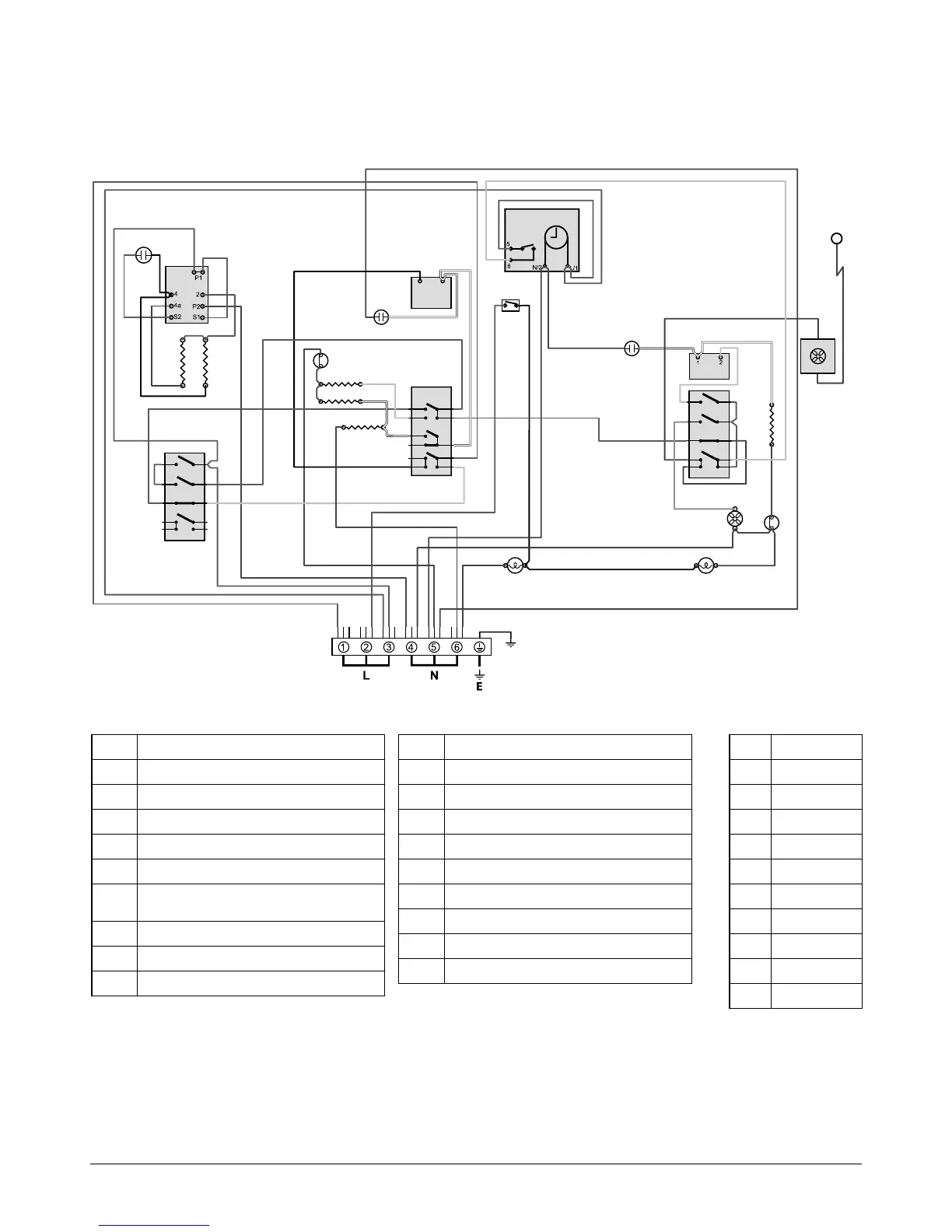
Conventional Oven
The connections shown in the circuit diagram are for single-phase. The ratings are for 230 V 50 Hz.
ArtNo.082-0025 - 110 Ceramic (oven) - Circuit diagram
2
3
4
1
P3
P2
P1
P4
1
2
P1
P2
P3
1
2
4
3
5
2
3
4
1
P3
P2
P1
P4
bk
bk
w
or
br
bk
br
b
br
bk
b
br
b
br br br
br
br
b
bk
b
bk
b
b
b
br
v
v
v
w
b
or
y
y
br
br
y
y
r
y
v
v
r
r
br
br
b
r
r r
b
b
bk
w
w
bk
y
br
br
br
r
b
w
y
b
y
w
br
br
br
w
b
To terminal 2
on the warmer
hob controller
switch
b
br
w
br
b
b
b
bb
v
v
w
br
br
b
wb
b
b
br
br
br
F2
G
B5
D
H
K
F1
F3
F4
J
I
B2
B1
B3
B4
A3
K
A1
A2
K
I
J
Code Description
A1 Grill energy regulator
A2 Grill front switch
A3 Grill elements
B1 Left-hand zoned oven thermostat
B2 Left-hand oven thermostat front switch
B3
Left-hand oven browning element (inner
pair)
B4 Left-hand oven top element (outer pair)
B5 Left-hand oven base element
D Clock
Code Description
F1 Right-hand oven thermostat
F2 Right-hand oven thermostat front switch
F3 Right-hand oven fan element
F4 Right-hand oven fan
G Cooling fan
H Oven light switch
I Oven light
J Thermal cut-out
K Neon
Code Colour
b Blue
br Brown
bk Black
or Orange
r Red
v Violet
w White
y Yellow
g/y Green/yellow
gy Grey

Related product manuals