EasyManua.ls Logo

Rangemaster Infusion-90 - Page 34

Rangemaster Infusion-90
40 pages
Print Icon
To Next Page IconTo Next Page
To Next Page IconTo Next Page
To Previous Page IconTo Previous Page
To Previous Page IconTo Previous Page
Loading...
30
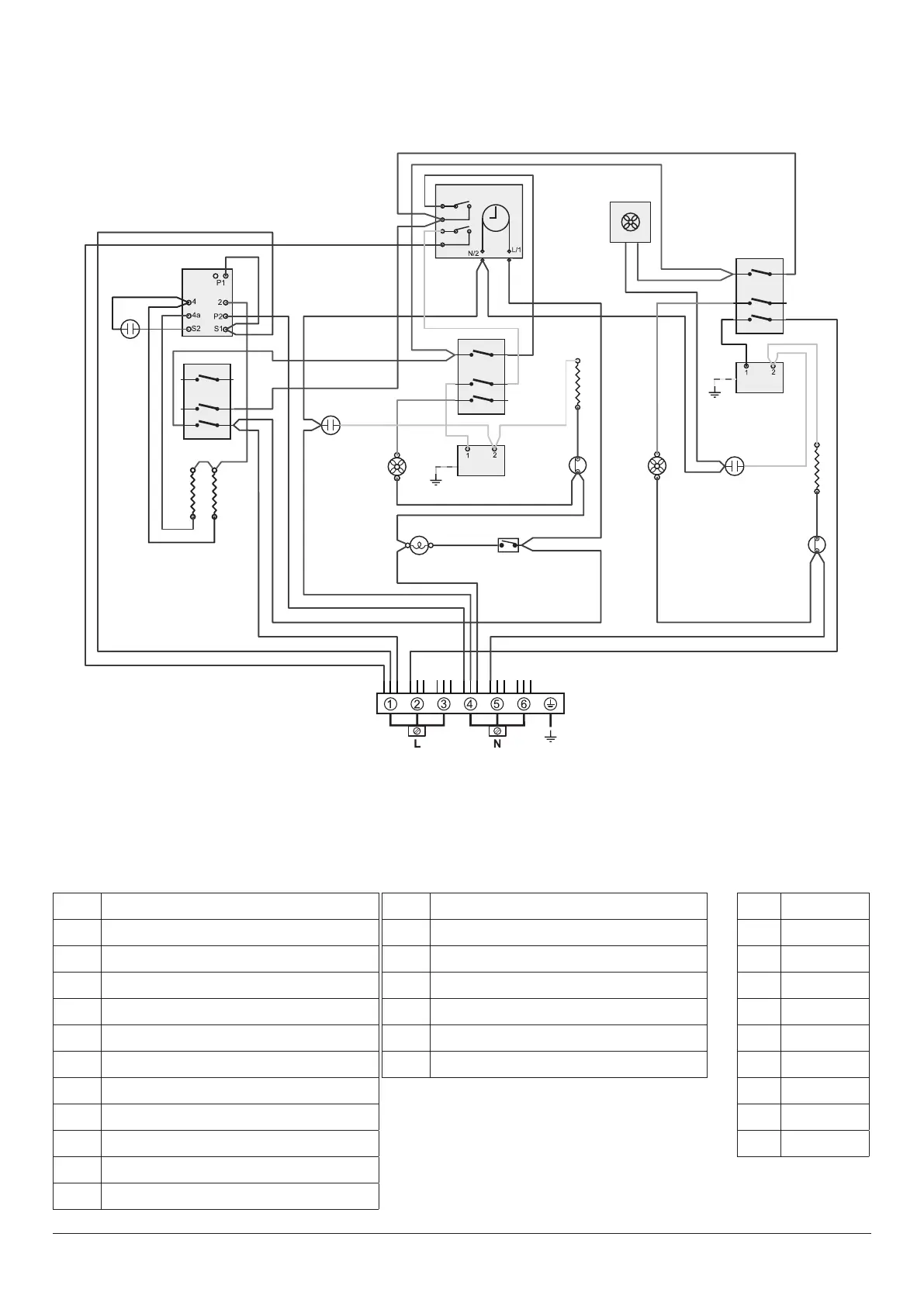
Fan Oven
ArtNo.082-0013 - 90 ceramic (oven) circuit diagram
P095199
1
2
1
P1
P1
P2
E
P095199
1
2
1
P1
P1
P2
P095199
1
2
1
P1
P1
P2
b
b
b
br
br
br
r
v
r
r
br
br
v
r
y
b
br
b
r
or
y
y
y
y
y
v
y
or
g/y
b
br
br
b
bk
r
v
br
or
v
bk
bk
g/y
y
y
b
y
b
b
or
br
v
r
bk
r
r
bk
b
b
b
y
v
v
br
r
bk
r
b
br
r
b
b
br
br
br
br
b
b
b
b
b
br
br
bb
y
b
b
bk
b
y
bk
r
br
A1
A2
A3
J
J
B4
B1
B2
D
H
B3
G1
G2
C4
J
H
C3
C1
C2
F
Key
The connections shown in the circuit diagram are for single-phase. The ratings are for 230 V 50 Hz.
Code Description
A1
Grill energy regulator
A2
Grill front switch
A3
Grill elements
B1
Left-hand oven thermostat
B2
Left-hand oven thermostat front switch
B3
Left-hand oven element
B4
Left-hand oven fan
C1
Right-hand oven thermostat
C2
Right-hand oven thermostat front switch
C3
Right-hand oven element
C4
Right-hand oven fan
Code Description
D
Clock
F
Cooling fan
G1
Oven light switch
G2
Oven light
H
Thermal cut-out
J
Neon
Code Colour
b
Blue
br
Brown
bk
Black
or
Orange
r
Red
v
Violet
w
White
y
Yellow
g/y
Green/Yellow

Related product manuals