EasyManua.ls Logo

Raypak 241275 - Page 9

Raypak 241275
22 pages
Print Icon
To Next Page IconTo Next Page
To Next Page IconTo Next Page
To Previous Page IconTo Previous Page
To Previous Page IconTo Previous Page
Loading...
9
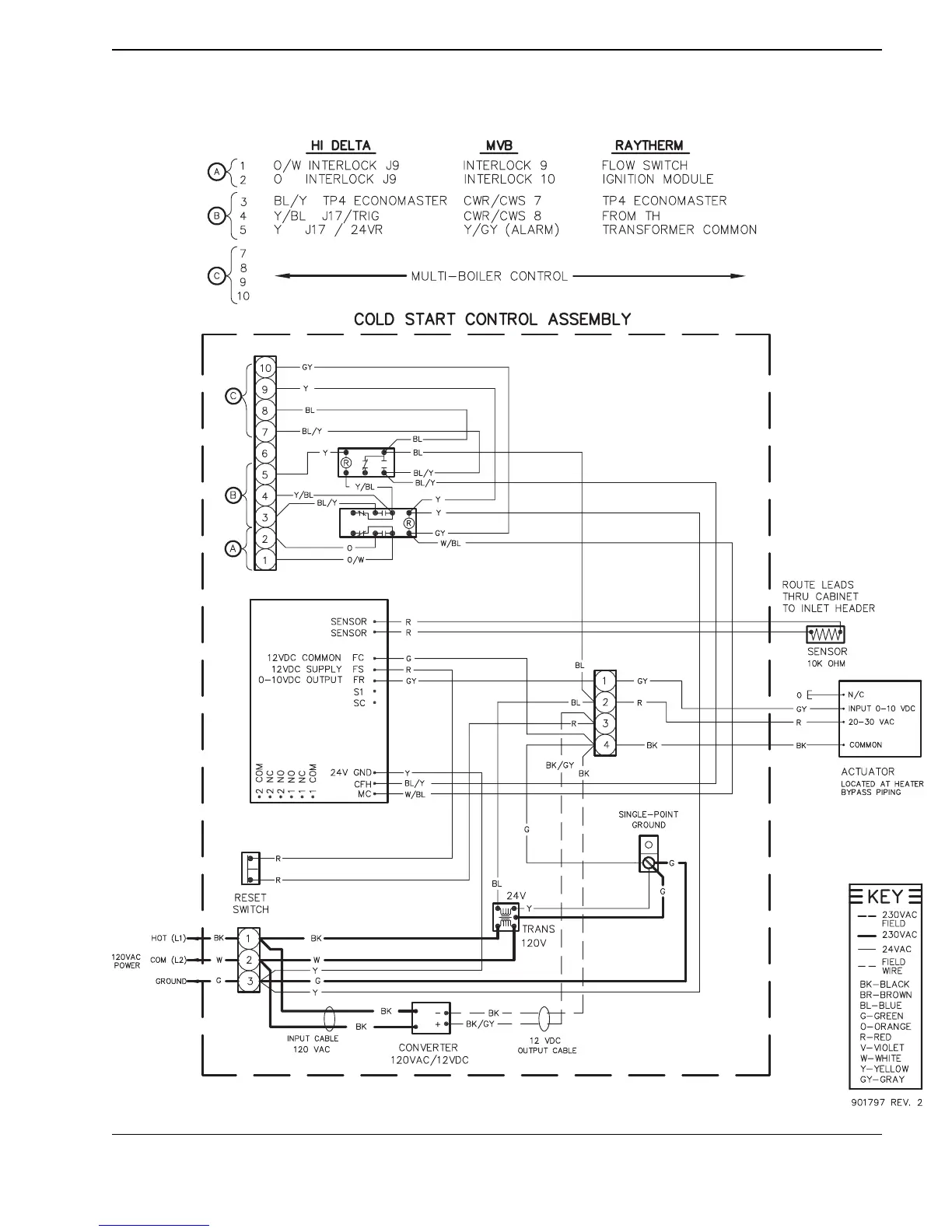
Wiring Diagram

Related product manuals