EasyManua.ls Logo

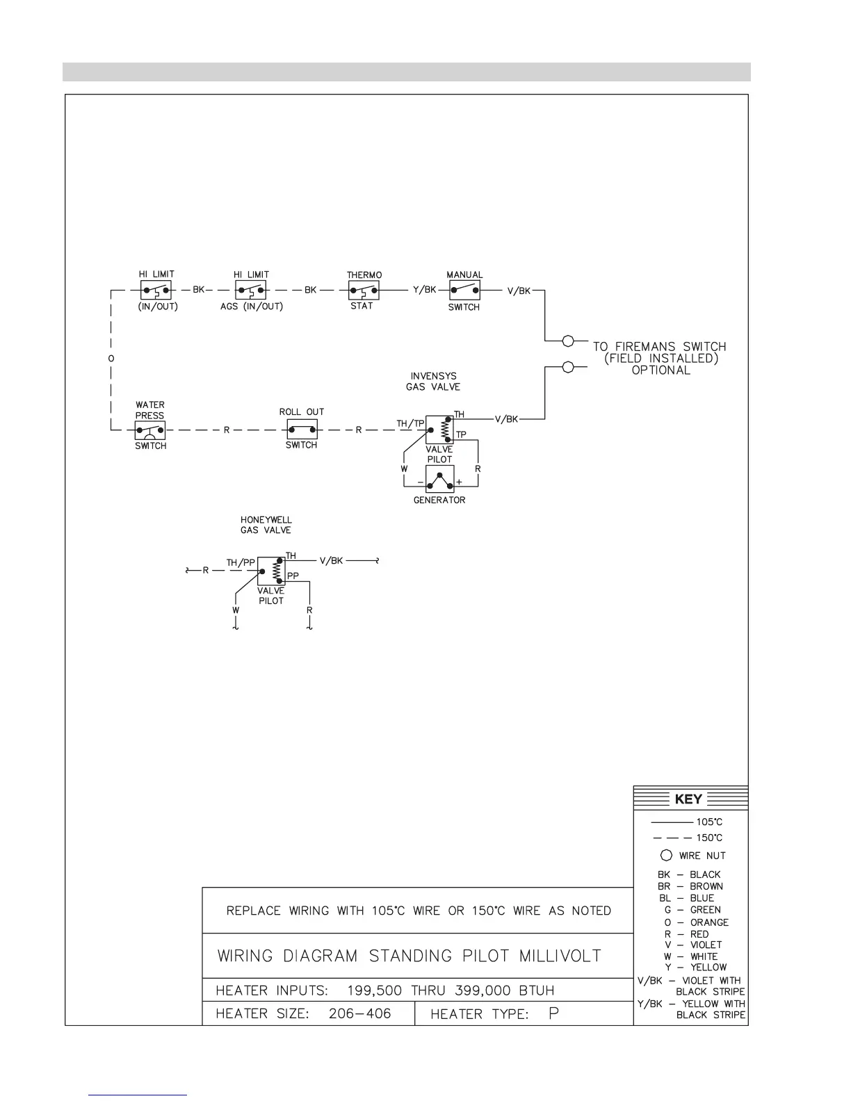
Raypak 267A - Wiring Diagram - Millivolt (Mechanical Therm.)

Raypak 267A
60 pages
Print Icon
To Next Page IconTo Next Page
To Next Page IconTo Next Page
To Previous Page IconTo Previous Page
To Previous Page IconTo Previous Page
Loading...
28
WIRING DIAGRAM - MILLIVOLT (MECHANICAL THERMOSTAT)

Table of Contents

Other manuals for Raypak 267A

Related product manuals