EasyManua.ls Logo

Raypak 302-902 - Page 52

Raypak 302-902
65 pages
Print Icon
To Next Page IconTo Next Page
To Next Page IconTo Next Page
To Previous Page IconTo Previous Page
To Previous Page IconTo Previous Page
Loading...
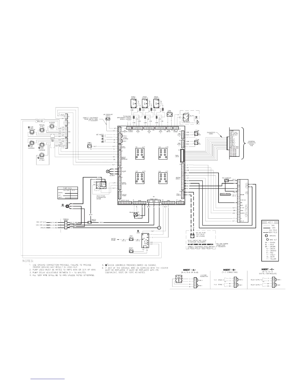
WIRE DIAGRAM MODEL 902
Reference Drawing Number M152465 Rev-P
H3/W3
52

Related product manuals