EasyManua.ls Logo

Raypak 399B-2339B - Page 40

Raypak 399B-2339B
52 pages
Print Icon
To Next Page IconTo Next Page
To Next Page IconTo Next Page
To Previous Page IconTo Previous Page
To Previous Page IconTo Previous Page
Loading...
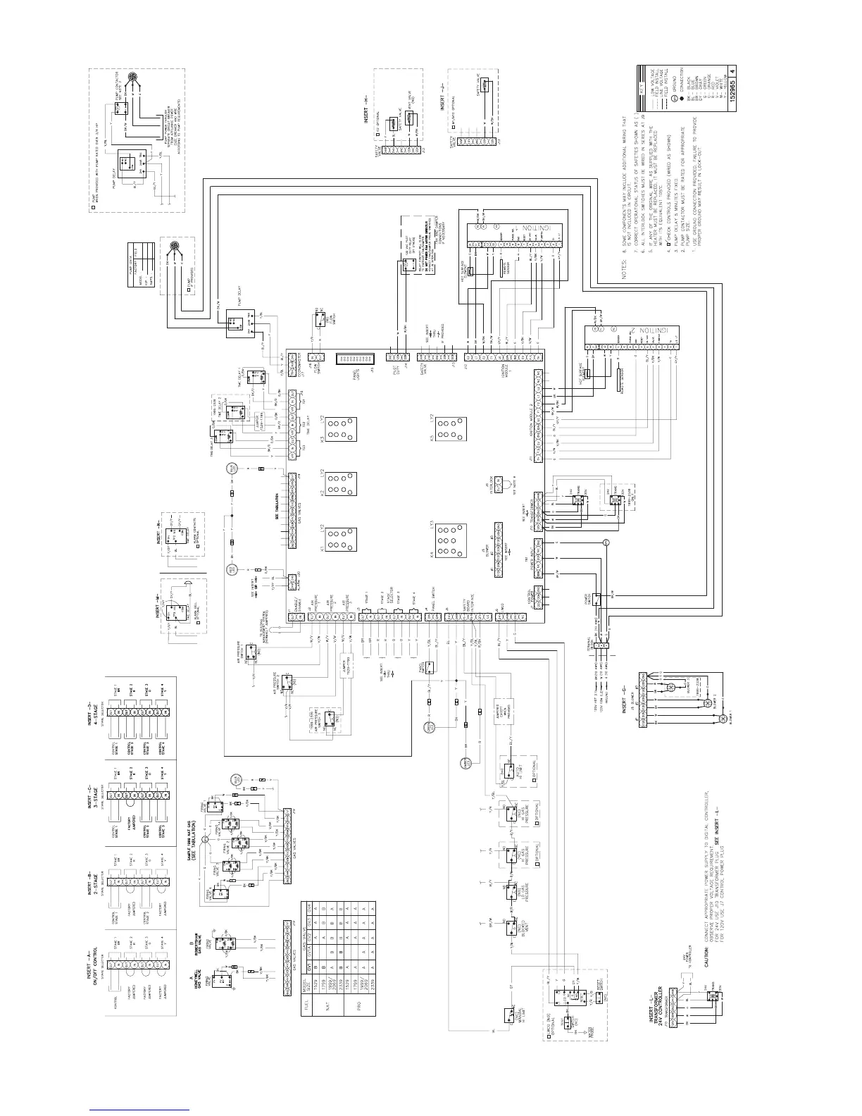
Wiring Diagram - Models 1529B–2339B
40

Related product manuals