EasyManua.ls Logo

Raypak 408 - Vent Piping and Categories

Raypak 408
40 pages
Print Icon
To Next Page IconTo Next Page
To Next Page IconTo Next Page
To Previous Page IconTo Previous Page
To Previous Page IconTo Previous Page
Loading...
14
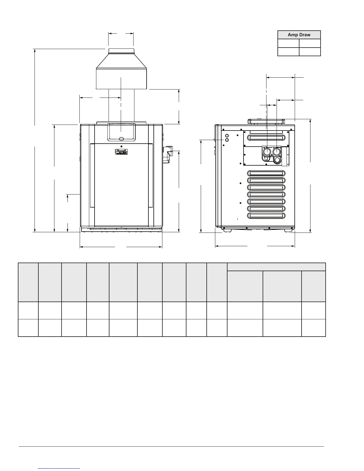
Heater
Model
BTUH
Input
(000)
(A)
Cabinet
Width
in. (mm)
(B)
Flue
Dia.
in.
(mm)
(C)
Indoor
Drafthood
in. (mm)
(D)
in. (mm)
(J)
Min.
in. (mm)
Gas
Conn.
Water
Conn.
Shipping Weights - lbs (kg)
Standard
Heater
w/Stackless
Top
ASME
Heater
w/Stackless
Top
Indoor
Draft-
hood
R268 266.0
23
(584)
7
(178)
62 (1574)
11.5
(292)
11
(279)
3/4" 2"
210
(95)
229
(104)
16
(7)
R408 399.0
29
(737)
9
(229)
64-9/16
(1640)
14.5
(368)
12-1/8
(307)
3/4" 2"
249
(113)
268
(121)
21
(9)
Designation for a heater using propane gas is “EP”; a heater using natural gas is “EN”.
Prex “B” is for brass (ASME) headers.
Sux “X” is for cupro-nickel tubing.
EXAMPLE: B-R408-EN-X = Brass headers, 408 model size, AFT, natural gas, cupro-nickel.
Reduce input 4% for each 1000 ft (305 m) above sea level when installed above 2000 ft (610 m) elevation.
For Canada, no de-rating is required for elevations up to 4500 ft (1,372 m)
*Note: For outdoor stack, use J dimension in the table above for appropriate size plus 6" (152 mm).
B
C
INDOOR
DRAFTHOOD
38"
(963 mm)
13-1/4"
(336 mm)
GAS
CONNECTION
J*
A
28-5/8"
(725 mm)
28"
(709 mm)
3-3/8"
(85 mm)
D
FLUE
Amp Draw
120 Volt 240 Volt
4 2
32-11/16"
(830 mm)
ELECTRICAL
CONNECTION
40"
(1,016 mm)
ELECTRICAL
CONNECTION
6-5/8"
(167 mm)
10"
(253 mm)
Figure 10. Heater Specication and Dimensions

Related product manuals