EasyManua.ls Logo

Raypak B0507 - Page 21

Raypak B0507
57 pages
Print Icon
To Next Page IconTo Next Page
To Next Page IconTo Next Page
To Previous Page IconTo Previous Page
To Previous Page IconTo Previous Page
Loading...
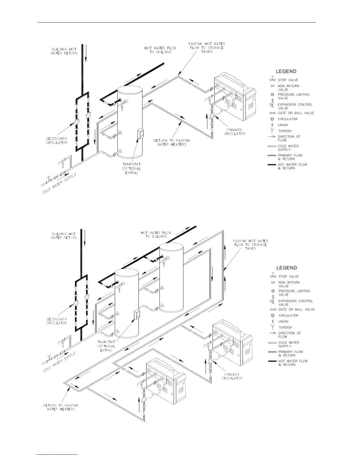
CONNECTIONS PLUMBING
21
Plumbing Diagrams
LEGEND
RAYPAK - SINGLE WATER HEATER, SINGLE TANK
Typical Installation One Water Heater One Storage Tank
Typical Installation Two Water Heaters, Two Storage Tanks
RAYPAK - TWO WATER HEATERS, TWO TANKS
LEGEND

Related product manuals