EasyManua.ls Logo

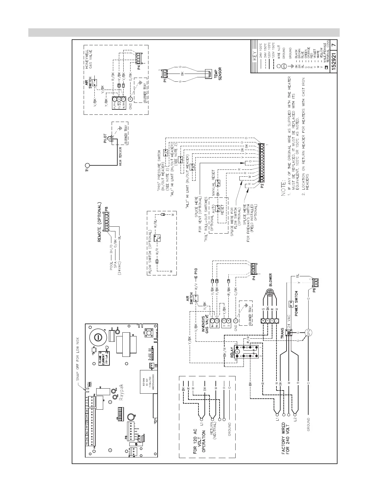
Raypak P-R206A-EN-C - Lo NOx Wiring Diagrams & Key; Lo NOx Heater Wiring Diagram (120;240 V)

Raypak P-R206A-EN-C
56 pages
Print Icon
To Next Page IconTo Next Page
To Next Page IconTo Next Page
To Previous Page IconTo Previous Page
To Previous Page IconTo Previous Page
Loading...
30
WIRING DIAGRAM - LO NOx

Table of Contents

Related product manuals