EasyManua.ls Logo

RBI FLEXCORE CK7000 - Page 12

RBI FLEXCORE CK7000
52 pages
Print Icon
To Next Page IconTo Next Page
To Next Page IconTo Next Page
To Previous Page IconTo Previous Page
To Previous Page IconTo Previous Page
Loading...
12
Cast Iron Condensing Boilers – Installation Manual
FlexCore Stainless Steel Condensing Boilers – Installation Manual
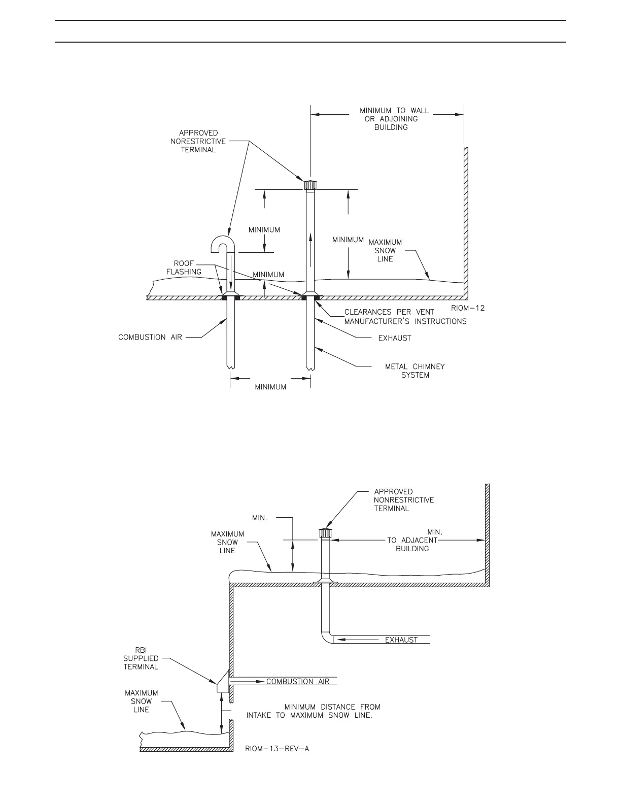
Figure 4 - Vertical Air Intake and Venting for Direct Vent System
Figure 5 - Combination Direct Vent Systems
10 FT 3.1 m
4 FT
1.2 m
5 FT
1.5 m
1.5 FT
0.5 m
5 1/2 FT
1.7 m
1.5 FT. .5 m
10 FT. 3.1 m
3 FT. 1 m