EasyManua.ls Logo

RBI FLEXCORE CK7000 - Page 13

RBI FLEXCORE CK7000
52 pages
Print Icon
To Next Page IconTo Next Page
To Next Page IconTo Next Page
To Previous Page IconTo Previous Page
To Previous Page IconTo Previous Page
Loading...
13
Cast Iron Condensing Boilers – Installation Manual
FlexCore Stainless Steel Condensing Boilers – Installation Manual
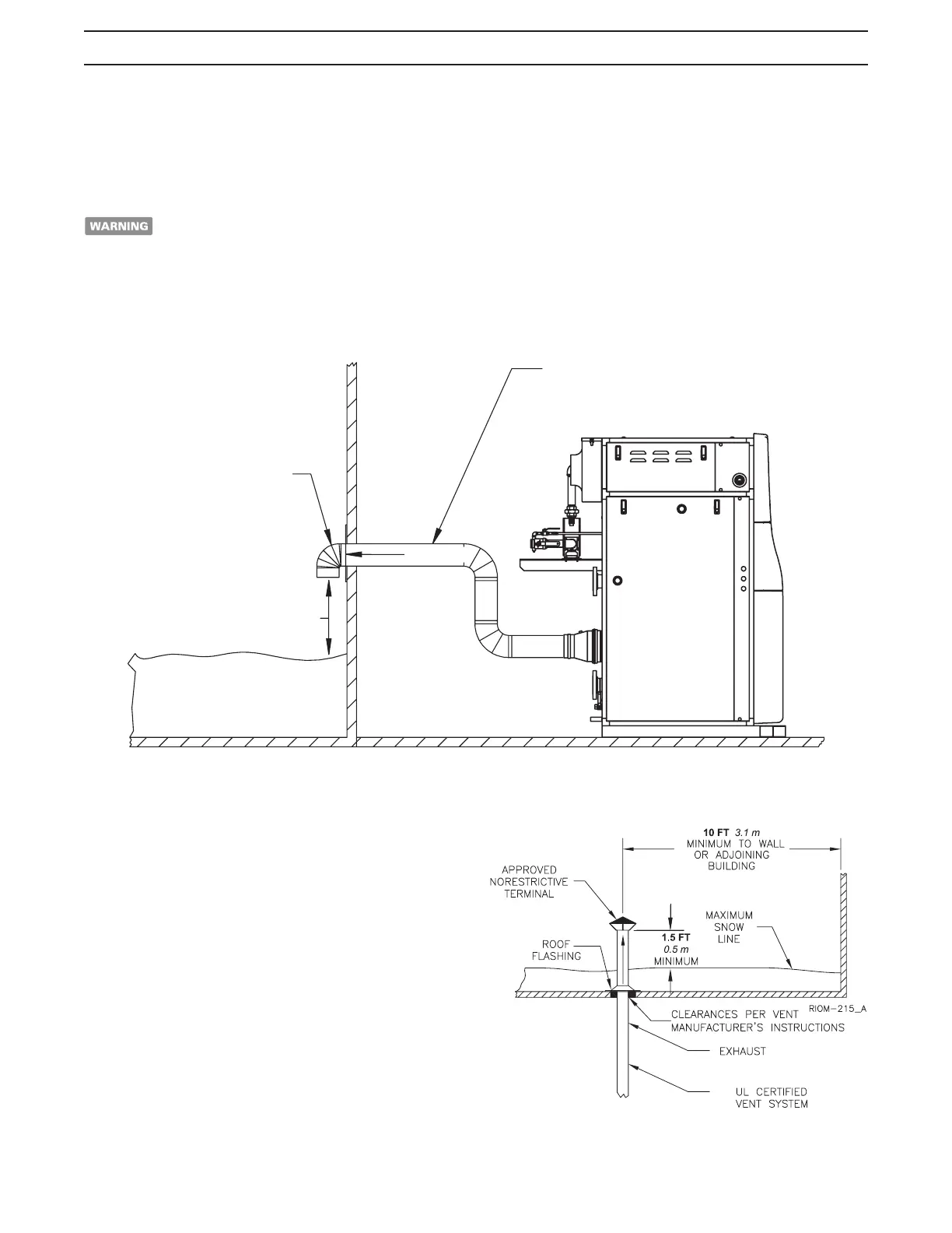
SIDE WALL VENT
POSITIVE PRESSURE, CATEGORY IV
In this configuration the boiler blower is used to push the
flue products horizontally to the outdoors, see Figure 6.
To ensure proper operation, boilers that are
vented sidewall and use room air must not
fire less than 33% input.
The air for combustion is taken from the space in which
the unit is installed. The applicable instructions under
the COMBUSTION AIR & VENTILATION SECTION
must be followed! The vent guidelines under the
HORIZONTAL DIRECT VENT SYSTEMS section must
also be followed.
Figure 6 - Side Wall Venting
VERTICAL VENT (Recommended)
POSITIVE PRESSURE - CATEGORY IV
In this configuration the boiler blower is used to push
the flue products vertically to the outdoors, see Figure
7. The air for combustion is taken from the space in
which the unit is installed. The applicable instructions
under the COMBUSTION AIR & VENTILATION
SECTION must be followed! The vent guidelines under
the VERTICAL DIRECT VENT SYSTEMS section must
also be followed.
Figure 7 - Vertical Positive Pressure Venting
RIOM-0202_A
PITCH PIPE DOWN TOWARDS BOILER
1/4 IN. PER FT. 20 nm/m OF RUN TO
ALLOW FOR CONDENSATE DRAINAGE.
REFER TO TABLE "Y"
FOR APPROVED VENT
TERMINATIONS AND
DIMENSIONAL DATA
EXHAUST
1.5 FT .5 m MINIMUM
DISTANCE FROM EXHAUST
TO MAXIMUM SNOW LINE