EasyManua.ls Logo

Reflex variomat 2-1/75 - Page 12

Default Icon
34 pages
Print Icon
To Next Page IconTo Next Page
To Next Page IconTo Next Page
To Previous Page IconTo Previous Page
To Previous Page IconTo Previous Page
Loading...
The circuits must be adjusted to suit local conditions.
reflex ’variomat’
Assembly
12
Notes for the installer
’variomat’ must always be
integrated in the main flow
in order to be able to degas
a representative partial flow.
In the case of central return
admixture, this is the system
side. The boiler will then be
individually protected.
If the capacity of reflex ’fillset’
is exceeded (kVS = 1 m³/h),
a suitable connection group
must be provided on site as
an alternative in the make-
up line. The filter may have
a maximum mesh size of
0.25 mm.
Sizing of the expansion lines
Reflex check list for
pressure-maintaining
systems, see page 12
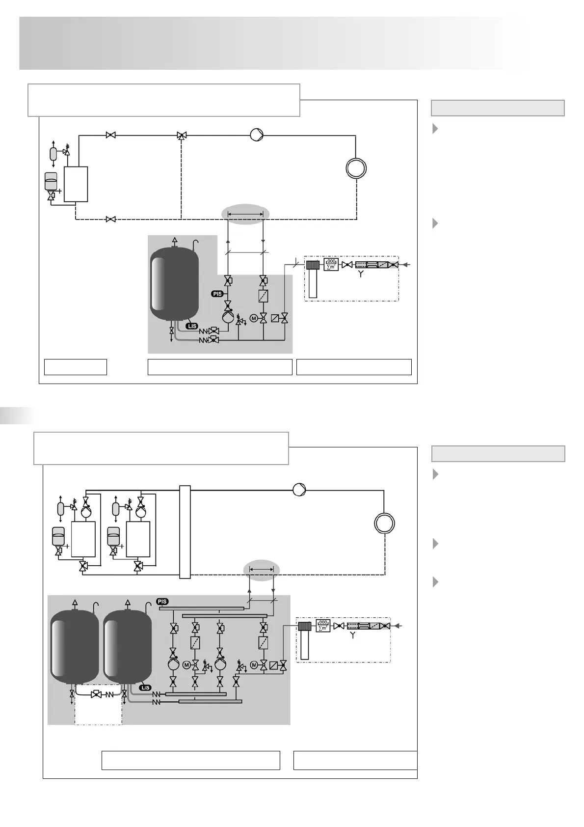
reflex ’variomat 2-1’ in a system with central return
admixture, make-up using softening system
tR 70 °C
Dirt-free integration
p. 10
’variomat 2-1’
reflex ’fillset’
VG basic
vessel
1)
POWM
Potable
water
Individual boiler
protection
System protection
Maintaining pressure, degassing and make-up
Connection of the water make-up system by
way of a chemical water treatment system
500
1)
25
15
’reflex’
reflex ’ET
expansion
trap’
reflex ’fillsoft’
reflex ’variomat 2-2’ in a multi-boiler system,
advance > 100 °C, make-up by way of softening system
tR 70 °C
Dirt-free
integration p. 10
’variomat 2-2’
reflex ’fillset’
VG basic
vessel
VF secondary
vessel
1)
Notes for the installer
In the case of water
treatment systems,
reflex ’fillset’ with system
separator and water meter
is installed upstream of the
softening system.
Provide individual protection
with ’reflex’ in the case of
multiple boiler systems.
Several VF secondary
vessels can be
connected.
Sizing of the
expansion lines
Reflex check list for
pressure-maintaining
systems
Page 12
1)
PO
WM
500
System protection
Maintaining pressure, degassing and make-up
Connection of make-up system by
way of a chemical water treatment system
Potable
water
’reflex’
reflex ’ET
expansion
trap’
Piping on site

Related product manuals