EasyManua.ls Logo

Regency C34-LP2 - Page 16

Regency C34-LP2
36 pages
Print Icon
To Next Page IconTo Next Page
To Next Page IconTo Next Page
To Previous Page IconTo Previous Page
To Previous Page IconTo Previous Page
Loading...
16 Regency CLASSIC C34-2 Direct Vent Freestanding Gas Heater
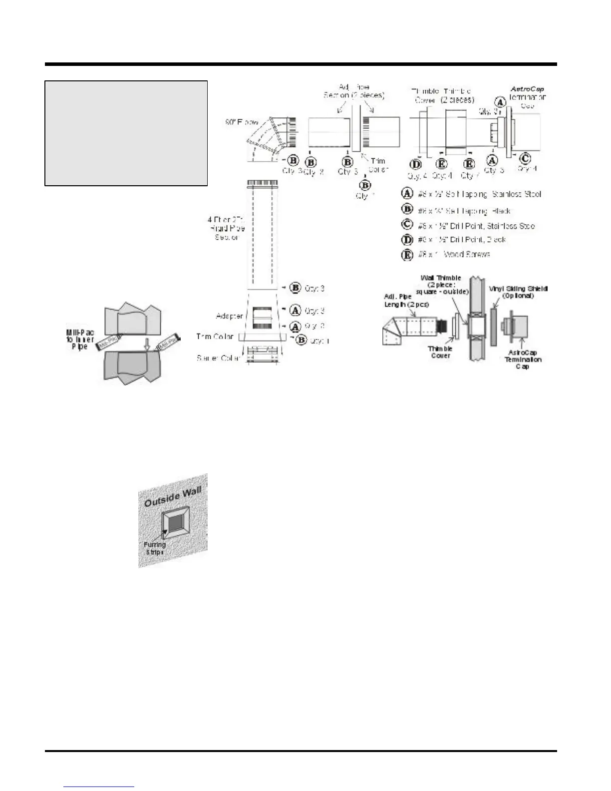
e) Cut the 2 ft. or 4 ft. section of rigid pipe
to length. Ensure that the pipe length
when cut will seat onto both the
starter collar and the 90
o
elbow.
Crimped section of rigid pipe
seats into the 90
o
elbow. Only cut
the uncrimped side of pipe.
Dismantle all pipe sections including vent
terminal.
3) Attach the 4" dia. flex liner to the vent
terminal ensuring that the flex overlaps the
collar of the vent terminal by a minimum of
1-3/8"(35mm). Use Mill-Pac to seal and se-
cure with 3 of the #8 x 1/2" screws (stain-
less steel).
4) Attach the adjustable pipe section to the
vent terminal using Mill-Pac and/or high
temperature silicone and attach with 3 of
the #8 x 1/2" screws (stainless steel).
Hint: Apply the sealant (Mill-Pac and/or high
temperature silicone) to the outer pipe before
connecting the inner pipe.
Note: The pipe seam should be facing
down.
Note: To make the installation more aes-
thetically pleasing, we recom-
mend framing
out a square that
the cap can be
mounted on.
Note: If installing termination on a siding
covered wall, a vinyl siding stand-
off or furring strips must be used
to ensure that the termination is
not recessed into the siding. For
vinyl siding standoff installation
refer to the Dura-Vent Termina-
tion instructions.
5) Slide the partially connected pipe and vent
terminal assembly through the wall thim-
bles (from the exterior into the interior) and
secure the cap to the exterior wall with 4
of the supplied screws (#8 x 1-1/2" drill
point, stainless steel). Note: pilot holes will
need to be drilled through the wall thimble
on all 4 corners.
Note: The four screws provided for the
vent cap should be replaced with
appropriate fasteners for stucco,
brick, concrete, or other types of
sidings.
6) A bead of non-hardening mastic should be
run around both the termination and vinyl
siding standoff to prevent water from en-
tering and to make a tight seal between the
cap and the standoff.
7) Stretch the 4" dia. flex liner out fully and get
a trial fit of the liner onto the 4" dia. starter
collar.
8) Cut the 4" dia. flex liner to the desired size.
Hint: leave an extra 12" to 16" of length, this
will make the final assembly easier to work
with.
9) Secure the 4" dia. flex liner to the 4" adapter
with Mill-Pac and 3 of the #8 x 1/2" screws
(stainless steel).
10) Slide the decorative Thimble Cover over the
pipe sections and secure with 4 screws
(#8 x 1-1/2" drill point, black) to the wall.
Slide the trim collar over the adjustable pipe
sections to cover the joint of the telescopic
section.
11) Slide the 90
o
elbow (crimp end up) and the
2 ft. or 4 ft. pipe section (crimp end up) over
the 4" dia. flex liner.
12) Install the spring spacers onto the pipe
sections.
13) Secure the 4" dia. flex liner with adapter
onto the stove collar. Put a bead of Mill-Pac
around the appliance adapter and secure
with 3 screws (#8 x 1/2, stainless steel).
14) Attach the pipe section onto the starter
collar by sealing with Mill-Pac and/or high
temperature silicone and securing with 3
of the #8 x 1/2" (black) screws. Pipe seams
should be facing the wall.
15) Attach the 90
o
elbow onto the pipe section
by sealing with Mill-Pac and/or high tem-
perature silicone and securing with 3 of the
#8 x 1/2" screws (black).
16) Slide the adjustable pipe section onto the
90
o
elbow. The flex may have to be com-
pressed back in order for the adjustable
pipe to properly mate to the elbow. Seal
with Mill-Pac and/or high temperature sili-
cone and secure with 3 of the #8 x 1/2"
screws (black). Pipe seams facing down.
17) Install the trim collar over the starter collar
and secure with a #8 x 1/2" screw (black).
If the pipe needs to be touched up, use only
Stove Brite High Temperature Metallic Black
Stove Paint.
NOTE: All inner joints must be sealed
with Mill-Pac. All outer joints may
be sealed with high temperature
silicone.
INSTALLATION

Table of Contents

Related product manuals