EasyManua.ls Logo

Regency C34-LP2 - Dura-Vent Horizontal Installations

Regency C34-LP2
36 pages
Print Icon
To Next Page IconTo Next Page
To Next Page IconTo Next Page
To Previous Page IconTo Previous Page
To Previous Page IconTo Previous Page
Loading...
Regency CLASSIC C34-2 Direct Vent Freestanding Gas Heater 19
INSTALLATION
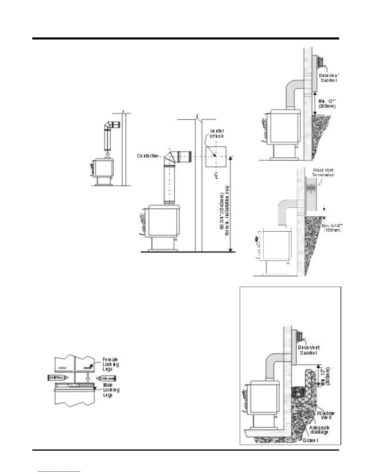
Diagram
4
Below Grade Installation
If the Snorkel Termination must be installed
below grade, i.e. basement application, prop-
er drainage must be provided to prevent
water from entering the Snorkel Termination.
Refer to Diagram 4. Do not attempt to enclose
the Snorkel with-
in the wall, or
any other type
of enclosure.
Diagram 3a
*Diagram 3, 3a &
4: As specified in
CGA B149 Instal-
lation Code. Lo-
cal codes or reg-
ulations may re-
quire different
clearances.
Note: Riser Vent is
only for use in above
grade terminations.
Diagram 2
Diagram 3
DURA-VENT
HORIZONTAL
INSTALLATIONS
1) Set the unit in its desired location. Check to
determine if wall studs or roof rafters are
in the way when the venting system is
attached. If this is the case, you may want
to adjust the location of the unit.
2) Direct Vent pipe and fittings
are designed with special
twist-lock connections to
connect the venting system
to the appliance flue outlet. A
twist-lock appliance adaptor
is installed on the unit at
the factory. Assemble
the desired combination
of pipe and elbows to
the appliance adaptor
with pipe seams orient-
ed towards the wall or ceiling, as much out
of view as possible. The final positioning of
the pipe and 90
o
elbow assembly is deter-
mined by the mounting orientation of the
adaptor on the stove and twist-locked for
a solid connection.
Note:
a) Twist-lock procedure: Four indenta-
tions, located on the female ends of
pipes and fittings, are designed to slide
straight onto the male ends of adjacent
pipes and fittings, by orienting the four
pipe indentations so they match and
slide in to the four entry slots on the
male ends (diagram 1). Push the pipe
sections completely together, then
twist-lock one section clockwise ap-
proximately one-quarter turn, until the
two sections are fully locked.
The female locking lugs will not be
visible from the outside on the Black
Pipe or fittings. They may be located by
examining the inside of the female ends.
Apply sealant "Mill-Pac" to inner pipe
and high temperature silicone sealant
to outer pipe on every twist-lock joint.
Diagram 1
Hint: Apply silicone to female end.
3) With the pipe attached to the stove, slide the
stove into its correct location, and mark the
wall for a 10" x 10" (inside dimensions)
square hole. The center of the square hole
should line up with the center-line of the
horizontal pipe, as shown in diagram 2. Cut
and frame the 10 inch square hole in the
exterior wall where the vent will be termi-
nated. If the wall being penetrated is con-
structed of non-combustible material, i.e.
masonry block or concrete, a 7" diameter
hole is acceptable.
Note:
a) The horizontal run of vent must be
level, or have a 1/4 inch rise for every
1 foot of run towards the termination.
Never allow the vent to run down-
ward. This could cause high temper-
atures and may present the possibil-
ity of a fire.
b) The location of the horizontal vent
termination on an exterior wall must
meet all local and national building
codes, and must not be blocked or
obstructed. For External Vent Termi-
nal Locations, see diagram on page
10.
c) Snorkel Terminations:
For installations requiring a vertical rise
on the exterior of the building, 14-inch
and 36-inch tall Snorkel Terminations
as shown in Diagram 3 are available, as
well as the standard Riser Vent, see
Diagram 3a. Follow the same installa-
tion procedures as used for standard
Horizontal Termination. NEVER install
the snorkel upside down.
b) Horizontal runs of vent must be sup-
ported every three feet. Wall straps are
available for this purpose.

Table of Contents

Related product manuals