EasyManua.ls Logo

Regency E21-LP1 - Flush Glass

Regency E21-LP1
32 pages
Print Icon
To Next Page IconTo Next Page
To Next Page IconTo Next Page
To Previous Page IconTo Previous Page
To Previous Page IconTo Previous Page
Loading...
13
Regency E21 Gas Fireplace Insert
Diagram 4
Diagram 5
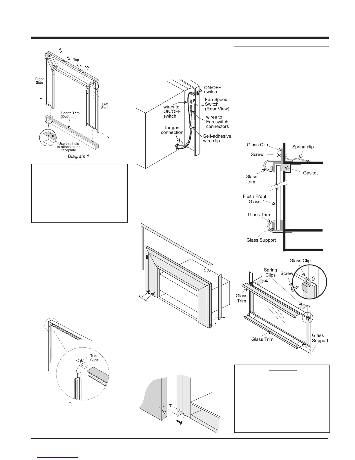
6)
Connect the ON/OFF switch wires by taking
the black and red wires with the female
ends and connecting them to the ON/OFF
switch.
FLUSH GLASS
1)
Install the
bottom glass trim
onto the glass
support.
2)
Slide the glass into the bottom glass trim
and secure with the glass clips using the 2
phillips head screws at the top.
3)
Slide the top glass trim by sliding under the
two spring clips.
Note: To re-install the glass, reverse the
procedure.
WARNING
The use of substitute glass will
void all product warranties.
Do not operate the appliance if the
glass panel(s) are removed, cracked
or broken. Replacement of the glass
panel(s) should be done by a qualifi ed
service person.
Diagram 3
INSTALLATION
8)
The power cord should be run behind the
faceplate panel.
9)
Attach the brass trim to the faceplate by
drilling a 1/8" hole through into the faceplate
using the hole in the trim as a guide. Fasten
the trim to the faceplate panels using the
gold plated screws. See diagram 4.
Diagram 1
Diagram 2
Diagram 2
3)
Using the connectors provided, join the left
side trim (with the ON/OFF switch) to the
top trim. See diagram 2. Connect the right
side trim to the top trim.
4)
Place the trim on the assembled faceplate
panels, aligning the wire connections from
the switches with the notch on the left side
panel.
5)
Connect the fan switch wires by taking the
black and red wires with the male ends (in
the grey harness) and connect them with
the wire connectors from the fan speed
control.
Hearth Trim Option:
Hearth Trim is an option
that can be used to nish off the installation when
the bottom of the replace is higher than the
hearth or to raise the replace. Lay the faceplate
side panels at, face down on something soft
so they don't scratch. Attach the Hearth Trim to
the bottom of the faceplate side panels with the
screws provided. See Diagram
2. Now attach
the assembled pieces to the insert body.
7)
Tuck the wires into the faceplate to keep
them away from the insert using the clip
provided. Attach the clip to the rear of the
faceplate to ensure that the wires do not
touch the side of the unit. See diagram 3.
10)
Attach the faceplate panels to the insert
body using the 4 remaining black screws.
See diagram 5.
11)
Push the logo plate into the two holes in
the bottom left corner of the faceplate. See
diagram 4.
diagram 4.

Related product manuals