EasyManua.ls Logo

Regency Ei29 - Page 17

Regency Ei29
60 pages
Print Icon
To Next Page IconTo Next Page
To Next Page IconTo Next Page
To Previous Page IconTo Previous Page
To Previous Page IconTo Previous Page
Loading...
17
Installer's Information
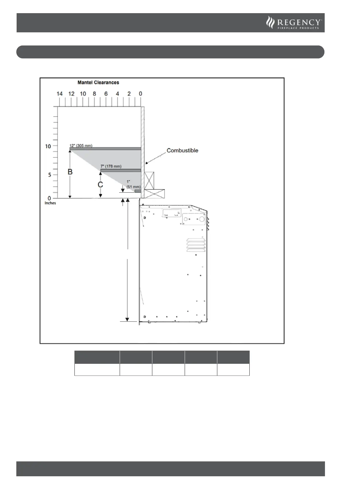
MANTEL CLEARANCES
A
D
Combustible mantel clearances from top of finishing trim are shown in the diagram below.
A B C D
Dimensions
532 mm
(20-15/16 in)
235 mm
(9-1/4 in)
140 mm
(5-1/2 in)
25 mm
(1 in)
Note: Ensure the paint that is used on the mantel and the facing is "heat resistant" or the paint may discolour.
Measurement (A) is shown with 3 sided finishing trim.
If using any of the optional flush faceplate's/backing plates/custom backing plates which have various heights depending
on faceplate chosen, ensure mantel begins above the actual faceplate using the chart above as the mantel cannot overlap
the faceplate Also see faceplate/backing plate sizes in this manual.

Related product manuals