EasyManua.ls Logo

Regency F2500 - Woodstove Dimensions

Regency F2500
9 pages
Print Icon
To Next Page IconTo Next Page
To Next Page IconTo Next Page
To Previous Page IconTo Previous Page
To Previous Page IconTo Previous Page
Loading...
F2500 Wood Stove | 3
FLOOR PROTECTION
(EMBER PROTECTION ONLY REQUIRED)
A combustible oor must be protected by a non-combustible material (like tile, concrete board, or certied to UL-1618 Type 1 (or as dened by
local codes).
Canada: Beneath the heater and extending to at least 18" on the fuel loading side and at least 8" on the sides and back.
USA: Beneath the heater and extending to at least 16" beyond the fuel loading side and ash removal opening and at least 8" on the sides and back
and under the chimney connector extending 2" beyond each side for horizontal applications.
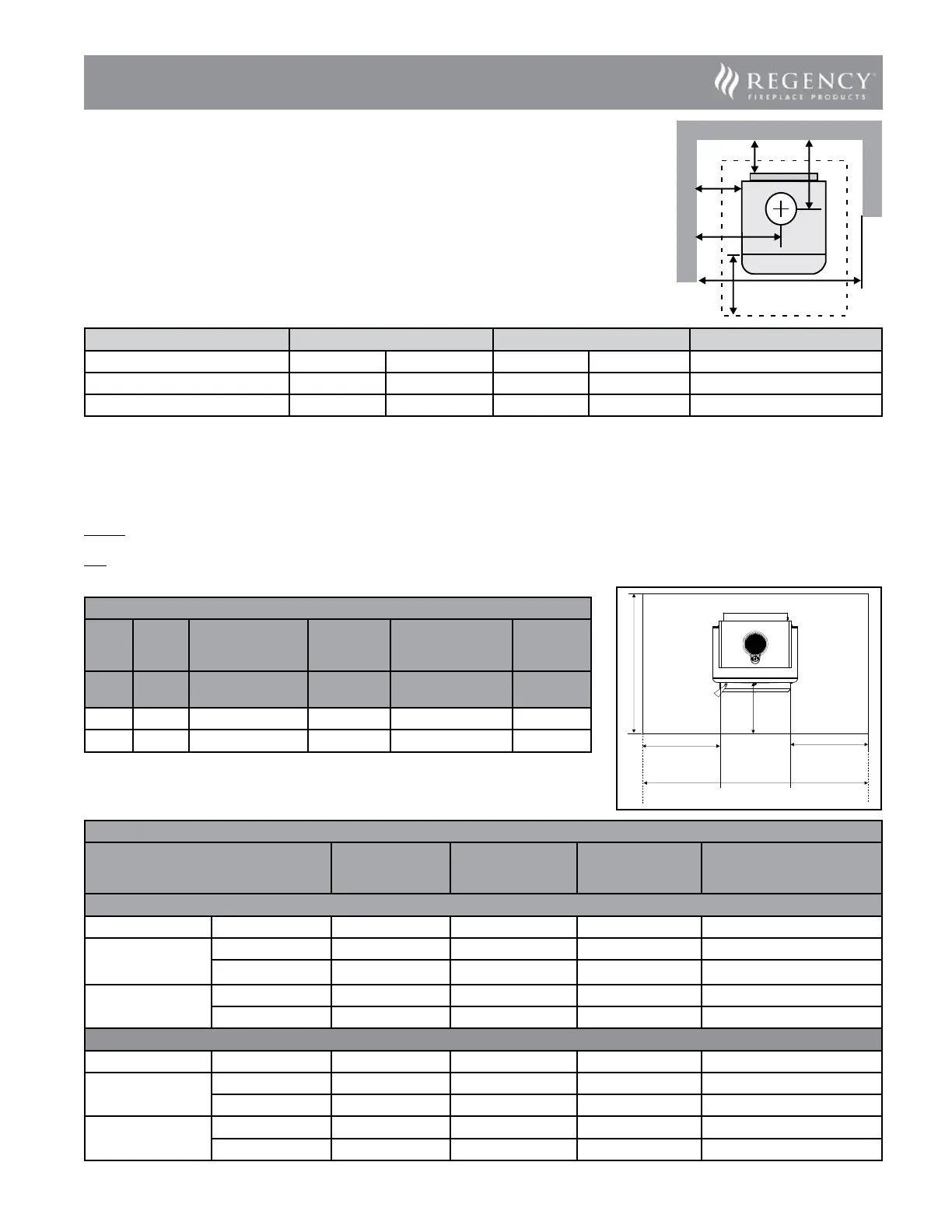
Minimum Overall Depth (Y) of Floor Protector
Reference only when hearth pad is
installed to rear wall at minimum pipe
clearances.
Hearth
Depth
Edge of Fuel door
opening to edge
of hearth
Hearth
Width
Edge of Fuel Door Opening
(Both Sides)
Residential Installation ''C'' Vent (Single Wall)
Unit A B C D
F2500 with Airmate Canada 49-1/2" (1257mm) 18" (457mm) 33-11/16" (856mm) 8" (203mm)
USA 47-1/2" (1207mm) 16" (406mm) 33-11/16" (856mm) 8" (203mm)
F2500 with Rear
Deector
Canada 51-1/2" (1308mm) 18" (457mm) 33-11/16" (856mm) 8" (203mm)
USA 49-1/2" (1257mm) 16" (406mm) 33-11/16" (856mm) 8" (203mm)
Residential Close Clearance (To be installed with required pipe components)
Unit A B C D
F2500 with Airmate Canada 48" (1219mm) 18" (457mm) 33-11/16" (856mm) 8" (203mm)
USA 46" (1168mm) 16" (406mm) 33-11/16" (856mm) 8" (203mm)
F2500 with Rear
Deector
Canada 50" (1270mm) 18" (457mm) 33-11/16" (856mm) 8" (203mm)
USA 48" (1219mm) 16" (406mm) 33-11/16" (856mm) 8" (203mm)
C
B
D
A
D
MINIMUM ALCOVE CLEARANCE AND CLEARANCE TO COMBUSTIBLE
MATERIALS
The Regency Freestanding models have been alcove approved and must be installed
with a listed double wall connector to the ceiling level.
Note: Minimum alcove ceiling height - 83"
Maximum depth of alcove - 48"
G
K
16"
405mm
H
J
I
NOTE: This clearance is also required for air space between the appliance and wall/ceiling. Where the
appliance is installed less than 8" from a rear wall, the ember pad only needs to extend to the base of
the wall based on the clearances noted in this manual.
Unit From Unit From Flue Center-Line From Wall
G H I J K
Medium F2500M with Airmate 15" (381mm) 7" (178mm) 27" (686mm) 13.5" (343mm) 54" (1372mm)
with Rear Deector 15" (381mm) 9" (229mm) 27" (686mm) 15.5" (394mm) 54" (1372mm)
Minimum Overall Depth (Y) of Floor Protector
Edge of Fuel door
opening to edge
of hearth
Edge of Fuel Door
Opening (Both
Sides)
Unit
A
B
C
D
F2500 Canada 49" (1245mm) 18" (457mm) 33 11/16" (856 mm) 8" (203mm)
USA 47" (1194mm) 16" (406mm) 33 11/16" (856 mm) 8" (203mm)

Other manuals for Regency F2500

Related product manuals