EasyManua.ls Logo

REXROTH VT 3006 - Engineering Notes; Installation Precautions; Measuring Zero (MO) Warning

REXROTH VT 3006
8 pages
Print Icon
To Next Page IconTo Next Page
To Next Page IconTo Next Page
To Previous Page IconTo Previous Page
To Previous Page IconTo Previous Page
Loading...
15
2
100
165
186
89
7
7
8TE (40,3)
3HE (128,4)
VT
3006
w
I
B
I
A
R1
H1
R2
H2
R3
H3
R4
H4
H11
H12
t5
t1
t2
t3
t4
Hydraulics Bosch Rexroth AG
RE 29926/10.06 VT 3006
7/8
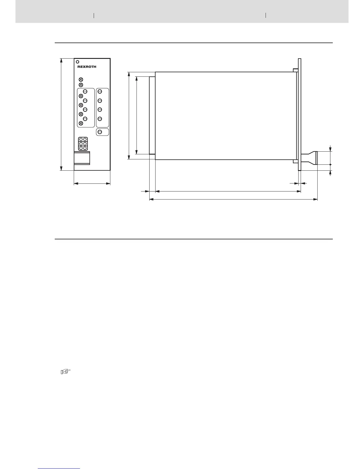
Unit dimension (Dimensions in mm)
Engineering notes / maintenance instructions / supplementary information
The amplifier card may only be plugged in or unpluged when switched off!
Do not use plugs with free wheel diodes or LED displays when connecting the solenoids!
Only carry out measurements on the cards with instruments R
i
> 100 kΩ!
Measuring zero (M0) is raised by +9 V compared to 0 V operating voltage and is not potentially separated , i.e. –9 V
controlled voltage is equivalent to 0 V operating voltage. Therefore do not connect measuring zero (M0) to 0 V operating
voltage!
When switching command values use relays with gold contacts (small voltages , small currents)!
When switching card relays only use contacts with a loadability of approx. 40 V, 50 mA!
When controlling externally the control voltage may have a maximum residual ripple of 10 %!
Always screen command value lines; connect screen to 0 V operating voltage on the card side, other side remains open
(danger of earth loops)!
Recommendation: Also screen solenoid lines!
Use cable type LiYCY 1,5 mm
2
for solenoid lines of up to 50 m in length.
For longer lengths please consult us!
Minimum distance to arial lines, radio sources and radar equipment must be at least 1m!
Do not lay solenoid and signal lines near power lines!
Because of the loading current of the smoothing capacitor on the card pilot fuses must be slow!
Note! When using the differential input both inputs must always be switched on or off simultaneously!