EasyManua.ls Logo

Rheem A180CL25E - Unit Dimensions

Rheem A180CL25E
37 pages
Print Icon
To Next Page IconTo Next Page
To Next Page IconTo Next Page
To Previous Page IconTo Previous Page
To Previous Page IconTo Previous Page
Loading...
3
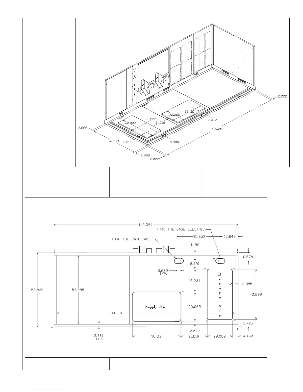
FIGURE 1. BOTTOM VIEW
FIGURE 2. SUPPLY AND
RETURN DIMENSIONS FOR
DOWNFLOW APPLICATIONS
Unit
Dimensions
FOR CLEARANCES
SEE PAGE 12, FIGURE 12.
IMPORTANT: THIS
UNIT MUST BE
MOUNTED LEVEL IN
BOTH DIRECTIONS TO
ALLOW WATER TO
DRAIN FROM THE
CONDENSER
SECTION AND
CONDENSATE PAN.
ST-A0886-02
ST-A0886-07

Related product manuals