EasyManua.ls Logo

RHOSS Yardy-ID2 - Page 46

RHOSS Yardy-ID2
Print Icon
To Next Page IconTo Next Page
To Next Page IconTo Next Page
To Previous Page IconTo Previous Page
To Previous Page IconTo Previous Page
Loading...
46
Allegati / Enclosed Documents / Annexes / Anlagen / Anexos
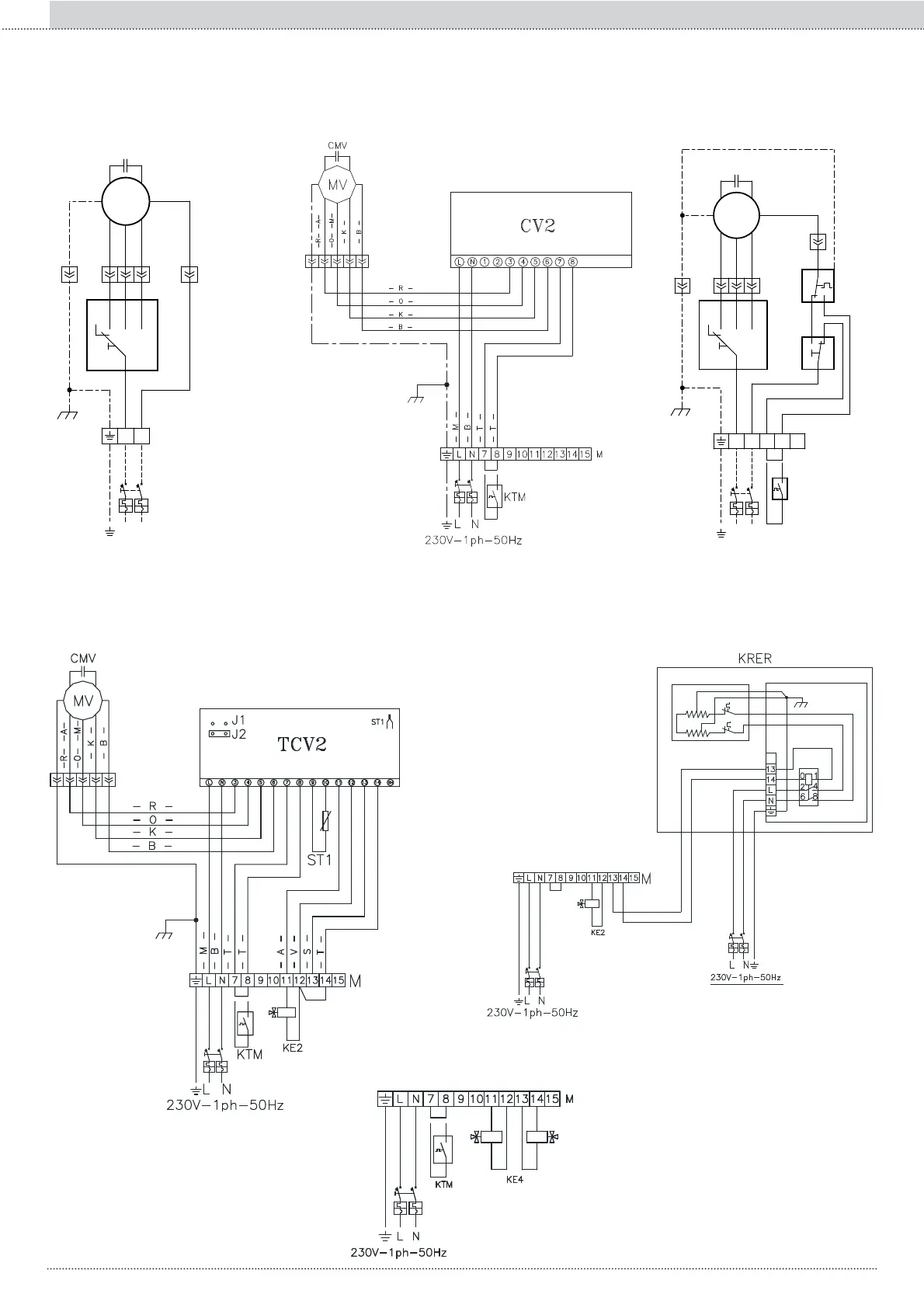
MONTAGGIO A BORDO MACCHINA
YardyEV3 + KC YardyEV3 + CV2 YardyEV3 + KTA
L N
M
- K -
- B -
-R- -A-
-O- -M-
230V-1ph-50Hz
L
N
SVV
MV
CMV
OFF
1
2
3
b
L
M
N
- B -
123
TA
E/I
SVV
KTM
230V-1ph-50Hz
N
L
MV
CMV
-R- -A-
-O- -M-
- K -
b
OFF
2
1
P1
3
1
2
1
2
3
2 Tubi / 2 Pipes / 2 Tuyaux / 2 Rohre / 2 Tubos (2 Tubi / 2 Pipes / 2 Tuyaux / 2 Rohre / 2 Tubos) + KRER
4 Tubi / 4 Pipes / 4 Tuyaux / 4 Rohre / 4 Tubos
<DUG\(97&9SLSHV
<DUG\(97&9SLSHVUHVLVWRU
<DUG\(97&9SLSHV
ON BOARD INSTALLATION
MONTAGE À BORD DE L'UNITÉ
ZUM EINBAU IN DIE MASCHINE
MONTAJE EN LA MÁQUINA

Table of Contents

Related product manuals