EasyManua.ls Logo

RIB B2 24V - Page 6

RIB B2 24V
Print Icon
To Next Page IconTo Next Page
To Next Page IconTo Next Page
To Previous Page IconTo Previous Page
To Previous Page IconTo Previous Page
Loading...
6
I
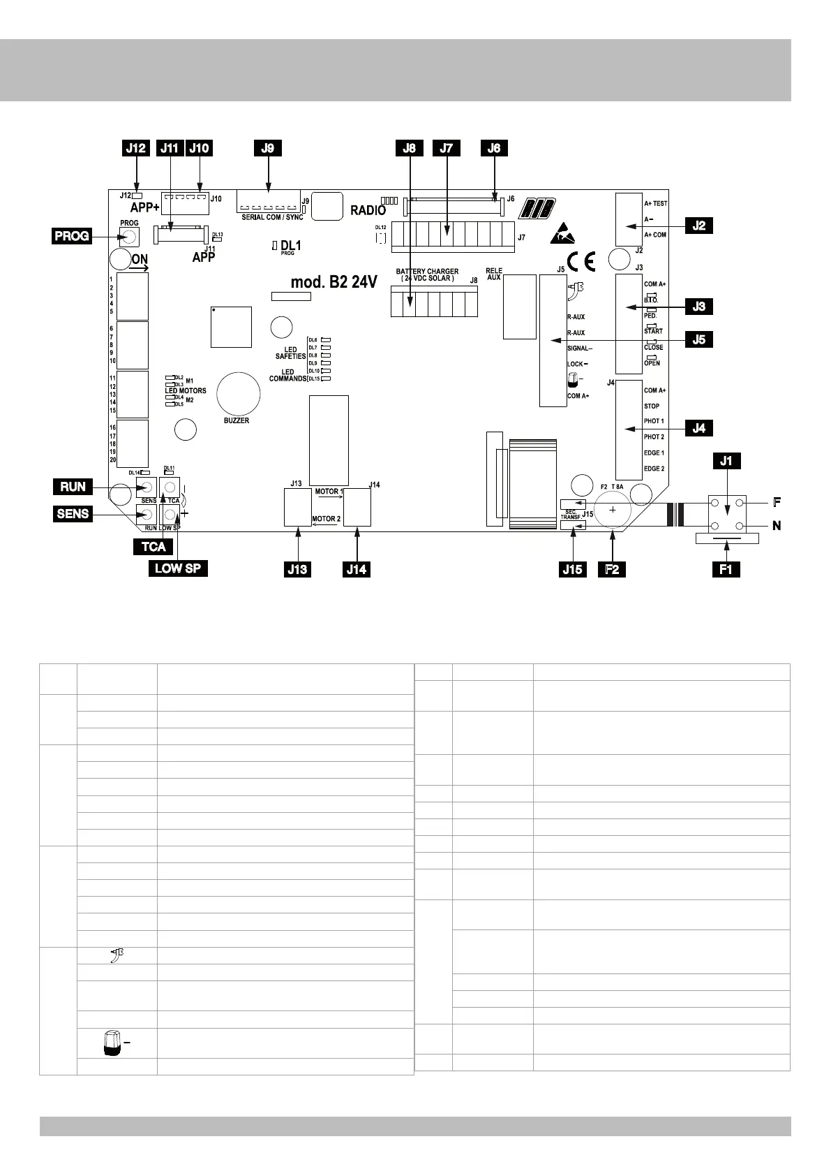
J1 N F Alimentazione 230 Vac 50/60 Hz - esterna alla scheda
(120 V 60 Hz a richiesta)
J2 A+TEST Positivo per alimentazione autotest fotocellule
A- Negativo per alimentazione accessori a 24Vdc
A+ COM Positivo per alimentazione accessori a 24Vdc
J3 COM A+ Comune dei contatti / Positivo 24 Vdc
B.I.O. Contatto orologio
PED. Contatto comando apertura pedonale (NA)
START Contatto impulso singolo (NA)
CLOSE Contatto impulso di chiusura (NA)
OPEN Contatto impulso di apertura (NA)
J4 COM A+ Comune dei contatti / Positivo 24 Vdc
STOP Contatto impulso di stop (NC)
PHOTO 1 Contatto fotocellule 1 (NC)
PHOTO 2 Contatto fotocellule 2 (NC)
EDGE 1 Contatto costa 1 (NC)
EDGE 2 Contatto costa 2 (NC)
J5
Antenna radio 433 MHz
R-AUX Contatto relé ausiliare (NA) Max 700 W
SIGNAL - Spia cancello aperto e segnalazione stato di funzionamento
con batteria e batteria scarica (24Vdc 3W max)
LOCK - Collegamento elettroserratura (MAX 15W 12V)
Collegamento fase negativa lampeggiatore a 24Vdc (cod.
ACG7061) Attenzione alle polarità.
COM A+ Comune dei contatti / Positivo 24 Vdc
J6 RADIO Connettore per modulo radio ACG8069
J7 RADIO Connettore per radio ricevitore RIB ad innesto con
alimentazione a 24Vdc
J8 BATTERY
CHARGER
(24 V DC SOLAR)
Connettore per scheda di ricarica batteria a 24Vdc (cod.
ACG4773)
J9 SERIAL COM /
SYNC
Connettore per collegamento seriale
J10 APP+ Connettore Scheda APP+
J11 APP Connettore Scheda APP
J12 Terminazione RS485 di J10
J13 MOTOR 2 Collegamento MOTORE 2 (senza polarità)
J14 MOTOR 1 Collegamento MOTORE 1 (senza polarità)
J15 SECONDARY
TRANSFORMER
Connettore per secondario trasformatore 18 Vac
SENS Trimmer di regolazione sensibilità all’impatto contro
un’ostacolo
TCA Trimmer di regolazione del tempo di attesa prima di avere la
chiusura automatica (DI DEFAULT NON ABILITATO E LED DL6
SPENTO)
RUN Trimmer di regolazione dell’alta velocità
LOW SP Trimmer di regolazione della velocità bassa
PROG Pulsante per la programmazione
F1 T 2 A Fusibile di protezione trasformatore (esterno alla scheda B2
24V)
F2 T 8 A Fusibile di protezione motori
TRASFORMATORE
A - CONNESSIONI
F
N
J15 F1F2J14J13
J12 J11 J10 J9 J8 J7 J6
J1
J4
J3
J2
PROG
RUN
TCA
SENS
LOW SP
J5

Related product manuals