EasyManua.ls Logo

RIB RAPID PARK - Control Accessory Functions; Normal Mode Operations; Automatic Closing Function; Remote Control Operation

RIB RAPID PARK
Print Icon
To Next Page IconTo Next Page
To Next Page IconTo Next Page
To Previous Page IconTo Previous Page
To Previous Page IconTo Previous Page
Loading...
30
30
G
B
OPEN1 BUTTON (COM - OPEN1)
     
     



      
  
      
    
       

CLOCK FUNCTION
      


    


    
       


     

     

       
       





CLOSE BUTTON (COM - CLOSE)
        

STEP BY STEP or AUTOMATIC COMMANDS (COM - K BUTT)
DIP5 - OFF => 

DIP5 - ON => 
       

       




REMOTE CONTROL
DIP4 - OFF => 

DIP4 - ON => 





         

AUTOMATIC CLOSING (DIP3 ON)



FUNCTIONING OF CONTROL ACCESSORIES in NORMAL MODE (DIP6 OFF)

         
         



Turn DIP1 to OFF
Turn DIP2 to OFF
POINT G - RADIO CODE FULL MEMORY TEST (ONLY
FOR CRX)

 Turn DIP1 to ON
turn also DIP2 to ON

 

Turn DIP1 to OFF
Turn DIP2 to OFF
_
+
+
_
_
+
+
NC
D-
+
D
+D
NO
COM
SS
D-
-
+
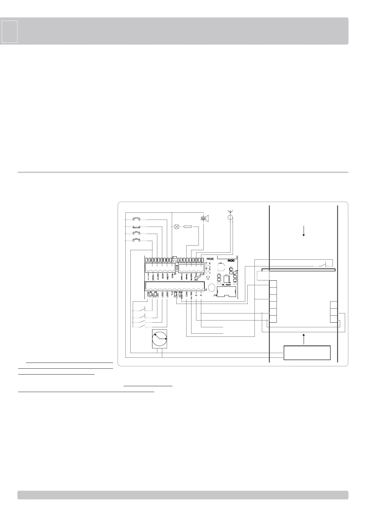
K BUTTON
STOP
CLOSE
OPEN 1
AERIAL
LED
BUZZER
COAX
ENTRY
MAGNETIC LOOP
TO EXIT
R=2K2
TIMER
LSC
LSO
LSSC
LSSO
EDGE
12 Vdc max 0,5A for ACCESSORY SUPPLY
12 Vdc max 0,5A for AUTOTEST EDGE

Related product manuals