EasyManua.ls Logo

Ridder RB40 - Page 9

Ridder RB40
Print Icon
To Next Page IconTo Next Page
To Next Page IconTo Next Page
To Previous Page IconTo Previous Page
To Previous Page IconTo Previous Page
Loading...
Ridder Drive Systems BV HARDERWIJK NEDERLAND Tel.: +31 (0)341 416 8 54
Fax: +31 (0)341 416 611
RB50 / 0505
10
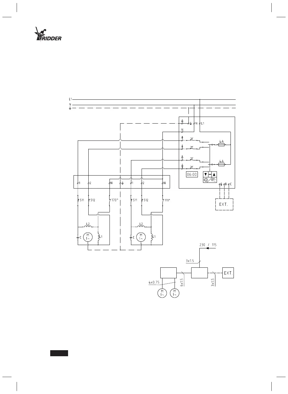
Fig. 10
Fig. 10

Related product manuals