EasyManua.ls Logo

RIDGID 690 - Schéma Électrique

RIDGID 690
37 pages
Print Icon
To Next Page IconTo Next Page
To Next Page IconTo Next Page
To Previous Page IconTo Previous Page
To Previous Page IconTo Previous Page
Loading...
Ridge Tool Company
21
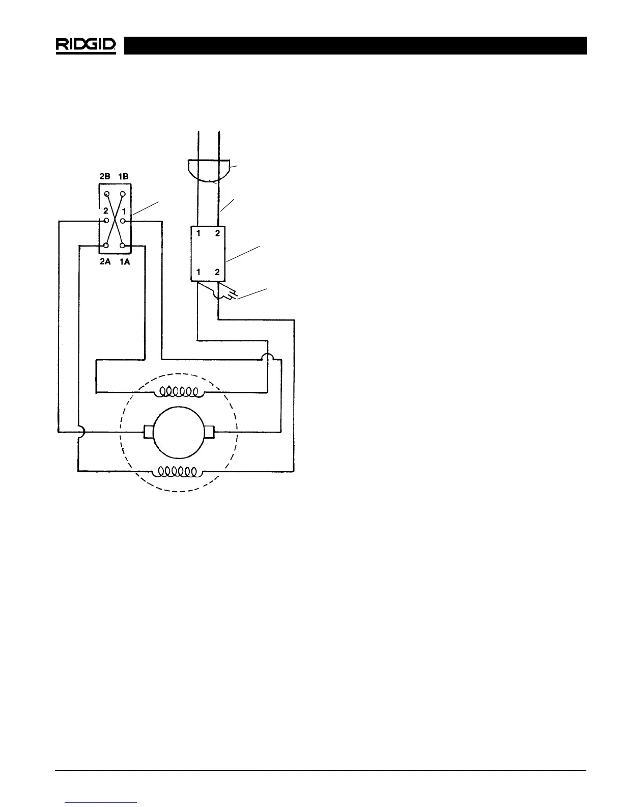
Système d’entraînement portatif n° 690
Inverseur
115V c.a.
(220V c.a.)
Gâchette
Fiche
Antiparasite
(220V seulement)
Noir
(Bleu)
Blanc
(Marron)
Bleu
Gris
Bleu
Gris
Blanc
Blanc
Schéma électrique

Table of Contents

Related product manuals