EasyManua.ls Logo

Riello 652 T1 - Burner Description; Packaging - Weight; Max. Dimensions; Standard Equipment

Riello 652 T1
52 pages
Print Icon
To Next Page IconTo Next Page
To Next Page IconTo Next Page
To Previous Page IconTo Previous Page
To Previous Page IconTo Previous Page
Loading...
3
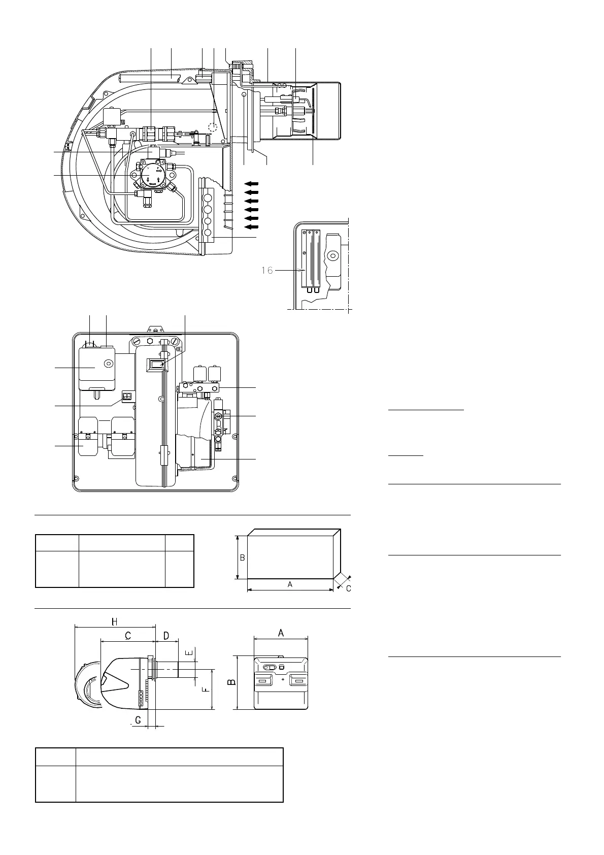
BURNER DESCRIPTION (A)
1 Ignition electrodes
2 Combustion head
3 Screw for combustion head adjustment
4 Photocell for flame presence control
5 Screw for fixing fan to flange
6 Slide bars for opening the burner and
inspecting the combustion head
7 Hydraulic cylinder for regulation of the air
gate valve in 1st and 2nd stage positions.
When the burner is not operating the air gate
valve is fully closed in order to reduce heat
dispersion from the boiler due to the flue
draught which draws air from the fan suction
inlet.
8 Safety solenoid valve (RL 38 - RL 50)
9 Pump
10 Plate prearranged to drill 4 holes for the pas-
sage of hoses and electrical cables.
11 Air inlet to fan
12 Fan pressure test point
13 Boiler mounting flange
14 Flame stability disk
15 Flame inspection window
16 Extensions for slide bars 6)
17 Motor contactor and thermal cut-out reset
button (RL 38 three-phase - RL 50)
18 Motor capacitor
(RL 28 - RL 38 single-phase)
19 Control box with lock-out pilot light and lock-
out reset button
20 Two switches:
- one “burner off - on”
- one for “1st - 2nd stage operation
21 Plugs for electrical connections
22 Air gate valve
23 Pump pressure adjustment
24 1st and 2nd stage valve assembly
Two types of burner failure may occur:
Control box lock-out: if the control box 19)(A)
pushbutton (red led) lights up, it indicates that
the burner is in lock-out.
To reset, hold the pushbutton down for between
1 and 3 seconds.
Motor trip (RL 38 three-phase - RL 50): release
by pressing the pushbutton on thermal cutout
17)(A).
PACKAGING-WEIGHT (B)
Approximate measurements
The burner is shipped in cardboard boxe with
the maximum dimensions shown in table (B).
The weight of the burner complete with pack-
aging is indicated in table (B).
MAX. DIMENSIONS (C)
Approximate measurements.
The maximum dimensions of the burner are giv-
en in (C).
Bear in mind that inspection of the combustion
head requires the burner to be opened and the
rear part withdrawn on the slide bars.
The maximum dimension of the burner, without
casing, when open is give by measurement H.
STANDARD EQUIPMENT
2 - Flexible hoses
2 - Gaskets for flexible hoses
2 - Nipples for flexible hoses
1 - Thermal insulation screen
2 - Extensions 16)(A) for slide bars 6)(A)
(for model with 351 mm blast tube)
4 - Screws to secure the burner flange to the
boiler: M 8 x 25
3 - Fairleads for electrical connections
(RL 28 and 38 single-phase)
4 - Fairleads for electrical connections
(RL 38 three-phase and RL 50)
1 - Instruction booklet
1 - Spare parts lis
(A)
(B)
(C)
18 17 15
24
23
22
19
20
21
1234567
141312
11
10
9
8
mm A B C kg
RL 28 1010 620 495 36
RL 38 1010 620 495 38
RL 50 1010 620 495 39
(1) Blast tube: short-lang
mm A B C
D
(1)
E F G
H
(1)
RL 28 476 474 468 216 - 351 140 352 52 672 - 807
RL 38 476 474 468 216 - 351 140 352 52 672 - 807
RL 50 476 474 468 216 - 351 152 352 52 672 - 807
D3260
D3275
D450
D88
D452

Table of Contents

Related product manuals