EasyManua.ls Logo

Riello RTC 3800-80 - Page 34

Riello RTC 3800-80
56 pages
Print Icon
To Next Page IconTo Next Page
To Next Page IconTo Next Page
To Previous Page IconTo Previous Page
To Previous Page IconTo Previous Page
Loading...
34
INSTALLATION
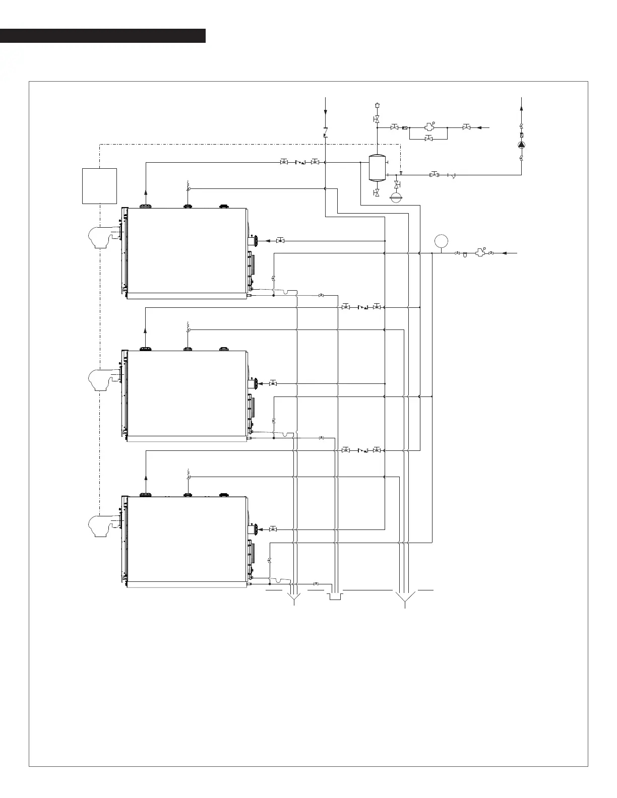
Multi-Boiler Combination
15
3
10
12
3
3
15
6
3
3
3
11
3
3
3
3
3
10
9
5
7
7
7
SP
8
16
16
17
16
16
16
16
17
16
16 17
17
16
18
4
5
3
TC
8
13
3
8
13
3
13
14
1
1
1
FLOW
FLOW
FLOW
WATER
INLET
LT (*)
CENTRAL
HEATING
RETURN
LT
RETURN (**)
LT
RETURN (**)
LT
RETURN (**)
CENTRAL
HEATING SUPPLY
MAKE-UP
WATER
2
2
2
19
1 Boiler
2 Burner
3 Isolation valves
4 Central heating system pump
5 Non-return valves
6 Automatic vent valve
7 Boiler safety valve
8 Boiler drain valve
9 Y strainer
10 Pressure reducer
11 Expansion tank
12 Water softener lter
13 Siphon
14 Condensate outlet
15 Drain
16 Isolation valve
17 Control valve
18 Air separator
19 Pressure gauge
SP Sequencing panel
TC Control temperature
. _ . _ . Electrical signal
(*) LT= Low Temperature/HT= High Temperature
(**) On the RTC 1000-80 to RTC 4700-80 the low
temperature heating return is located on the top
of the boiler. See "Single Boiler Piping Schematic
Type A".

Table of Contents

Related product manuals