EasyManua.ls Logo

Rinnai RL75E - Additional Clearances

Rinnai RL75E
60 pages
Print Icon
To Next Page IconTo Next Page
To Next Page IconTo Next Page
To Previous Page IconTo Previous Page
To Previous Page IconTo Previous Page
Loading...
28 VB Series Outdoor LS Manual
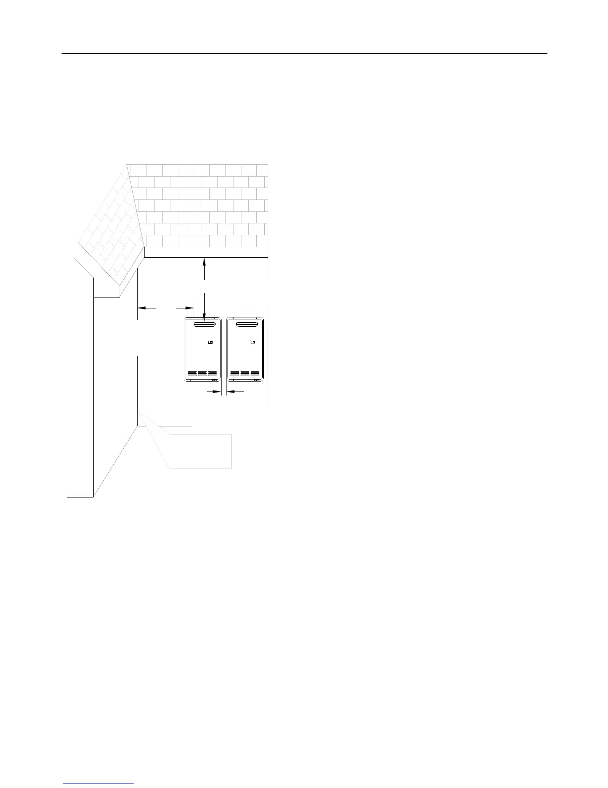
Additional Clearances
Local codes supersede these clearances.
Avoid termination locations near a dryer vent.
Avoid termination locations near commercial cooking exhaust.
2"
36"
12"
INSIDE
CORNER
*
(0.30 m) to an
inside corner
(50 mm) between Rinnai terminals at same level
(0.91 m) to ventilated or unventilated soffit or eve vent; or
to a deck or porch

Table of Contents

Related product manuals