EasyManua.ls Logo

Rinnai RL75E - Mounting the Controller

Rinnai RL75E
60 pages
Print Icon
To Next Page IconTo Next Page
To Next Page IconTo Next Page
To Previous Page IconTo Previous Page
To Previous Page IconTo Previous Page
Loading...
32 VB Series Outdoor LS Manual
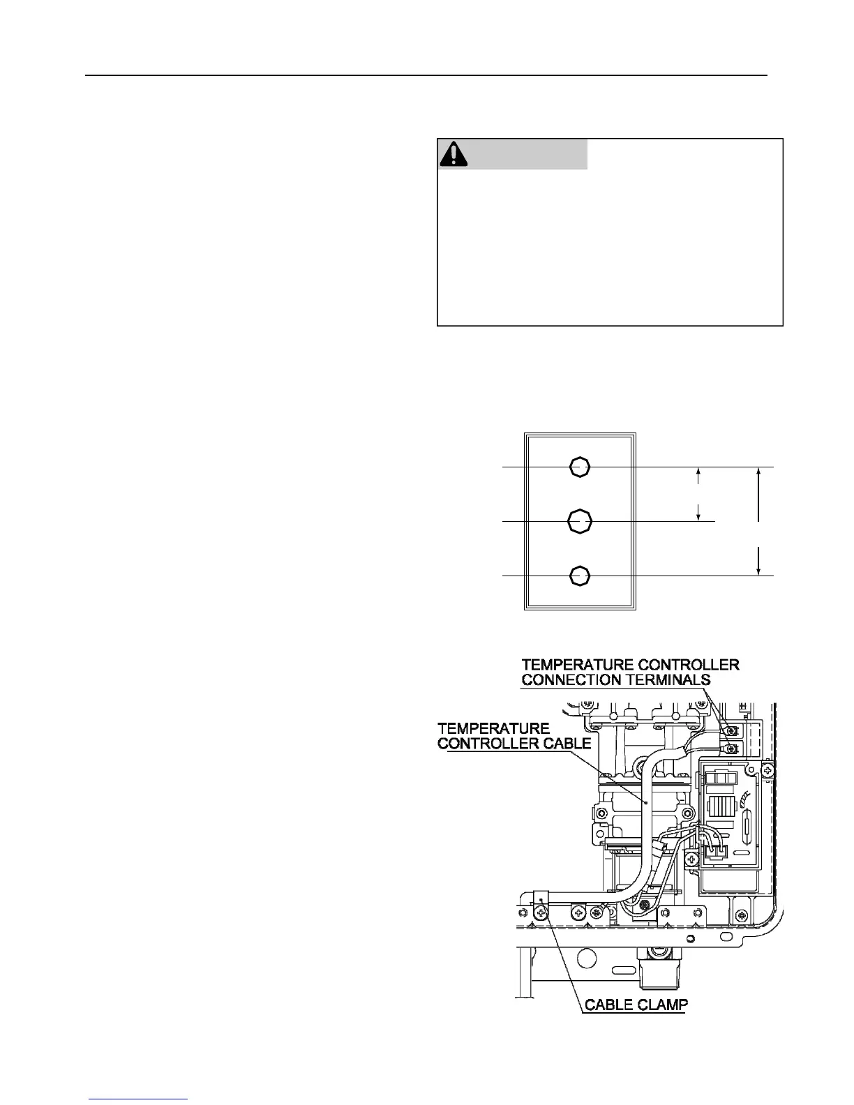
Temperature Controller Installation
1. Determine a suitable location for the
controller.
2. Make three holes in the wall as shown.
3. Run the cable between the controller and the
Rinnai water heater or the controller and the
other controller.
4. Remove the face plate from the temperature
controller using a screwdriver.
5. Connect the cable to the temperature
controller.
6. Mount the controller to the wall using the
holes drilled in step 2.
7. Disconnect the power from the Rinnai water
heater.
8. Remove the cover of the Rinnai water heater.
9. Remove the plastic cover from the PCB and
electrical connections.
10. Thread the cable through the access hole at
the base of the unit and connect the wires to
the controller terminals on the right hand side
bottom of the PCB.
11. Secure the controller cable using the clamp
provided.
12. Replace plastic cover over PCB and then
replace the cover of the Rinnai water heater.
Do not attempt to connect the temperature controllers
with the power on. There is 120 volt potential, next to
the temperature controller connections inside the unit.
Do not connect the temperature controller to the
120VAC terminals provided for the optional
solenoid drain valves.
All service and wiring should be performed by a
registered installer.
WARNING
Outline of Remote
securing screw
1-21/32"
3-5/16
"
securing screw
wiring hole
Mounting the Controller
Follow the procedure below to install MC-91 or
MCC-91 temperature controllers.

Table of Contents

Related product manuals