EasyManua.ls Logo

RITE-HITE Protecdor 8000CL - Installation Instructions; Door Opening Verification; Sideframe Installation Steps

RITE-HITE Protecdor 8000CL
28 pages
Print Icon
To Next Page IconTo Next Page
To Next Page IconTo Next Page
To Previous Page IconTo Previous Page
To Previous Page IconTo Previous Page
Loading...
Pub. No. 8000CLB FEBRUARY 2004 3
PROTECDOR® CL Model 8000CL
The following is basic information that you should review before
beginning the installation.
1. Make sure that you have any special work or building permits.
2. Make sure that you are working at the correct door location.
3. Inspect the installation site to make sure that there are no
overhead obstructions (sprinkler pipes, HVAC systems,
electrical supply lines, etc.) that might interfere with the
lifting of the header tube assembly during installation.
4. Detour material handling equipment (fork lift trucks, etc.)
during the installation of the door.
5. Move the entire crate of the door components as close to
the door opening as possible.
6. Make sure that the electrician is ready to bring the correct
electrical power supply to the door control box.
7. Make sure that the electrical power can be shut off without
interfering with other plant operations.
8. Verify that there is nothing buried in the floor (electrical
supply, communication lines, etc.) where the anchor bolts
will be installed.
9. When unpacking the door components remove the lighter
items first (electrical components), then the side frame
assemblies, and the roll tube assembly last.
NOTE:
Electrical prints included in the parts or control box,
supersede any prints included in this owners manual
on Pages 23-25. Always check for electrical prints.
It is important to verify the door opening to the door
size before starting with the installation.
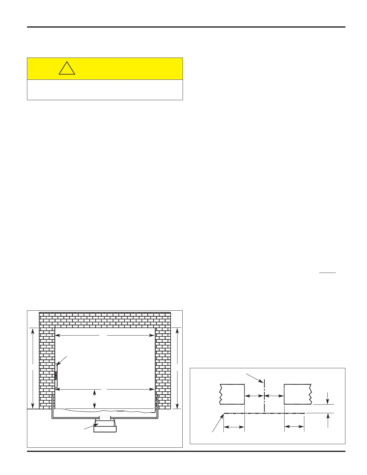
1. Measure the overall width of the door opening near the
floor and near the top (Dimensions A and B), Figure 1.
These measurements should be within ± 1/4" of the sizes
listed on the Serial Number label for the door to be
installed.
2. Measure the height of the door opening at the left and
right-hand sides (Dimensions C and D), Figure 1. These
should be within ±1" of the dimensions listed on the Serial
Number label. If the measurements do not agree, STOP!
Contact your RITE-HITE DOORS, INC. representative.
3. Verify that the door jambs are plumb and perpendicular
and that the horizontal header is level.
4. Make sure that the floor is level using a 6’ carpenter’s
level or water level. If the floor is not level to within 1/4",
shimming of the sideframe assemblies will be required,
Figure 1.
SIDEFRAME INSTALLATION INSTRUCTIONS
1. Measure the door opening width approximately 48" above
the floor, Figure 1. If the door opening width is narrower
than the width of the door listed on the Serial Number
label, subtract the door opening width from the door width.
The difference between these two numbers should be
divided in half and added to each side of the door
opening. These points will be used as the inside edge
measurement AA and BB on Figure 4 between the
sideframe assemblies of the door.
Example:
Door width listed on the Serial Number label 12' 1"
Actual door opening width –12' 0"
Difference 1"
For example, the 1" difference needs to be added to
measurements AA and BB in, Figure 3. Half of this
dimension must be split between the centerline.
NOTE:
If the door is wider than the opening the breakaway
magnets may not function properly.
2. Snap a chalk line on the floor 3 1/4" from the wall and
extending at least 12" to either side of the door opening,
Figure 2. This will be the reference line used to keep the
sideframes square with each other.
INSTALLATION INSTRUCTIONS
LISTING OF MEASUREMENTS AND
MARKINGS REQUIRED
1. Door width at bottom
2. Door width at top
3. Door height left
4. Door height right
5. Mark left wall where water is level.
6. Mark right wall where water is level.
C
D
Hydro-Level
A
B
48”
High Side
Low Side
Level
FIGURE 1
Make sure to barricade the door opening on
both sides to prevent unauthorized use until the
door has been completely installed.
CAUTION !!!
!
FIGURE 2
12”
12”
“E”
“E”
Wall
Chalk
line
Center line
3 1/4”