EasyManua.ls Logo

Rivacold FS Series - Page 135

Rivacold FS Series
Print Icon
To Next Page IconTo Next Page
To Next Page IconTo Next Page
To Previous Page IconTo Previous Page
To Previous Page IconTo Previous Page
Loading...
FS Pag. 135 Rev 00 02/11
D
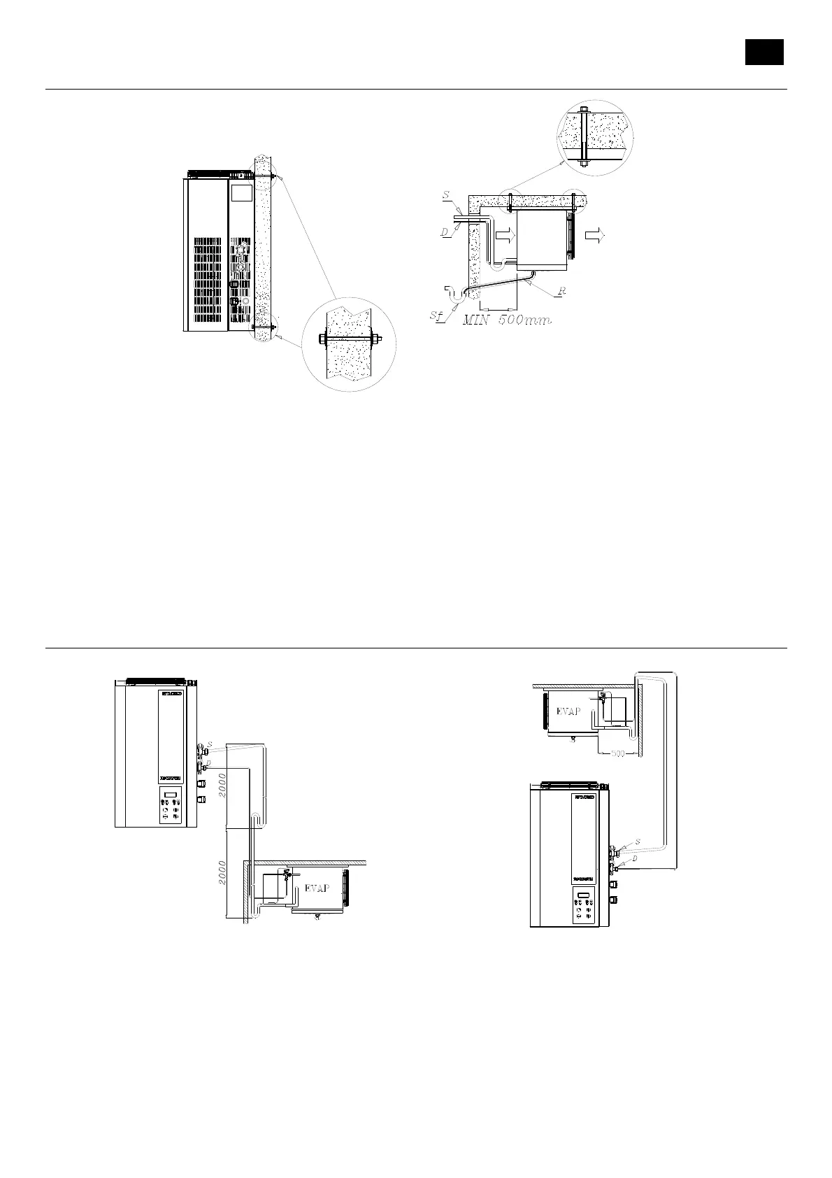
Abbildung 4 – Installation der Maschine.
7. Eine weitere Bohrung für den Verlauf der Kabel des Türkontaktschalters, der Temperatursonde und dem Abtauende ausführen.
ANM.: diese Kabel dürfen nicht in der Nähe der Stromkabel verlaufen, um Störungen der Signale zu vermeiden.
INSTALLATION DES VERDAMPFERS
Siehe Abbildung 4, wie auch die technische Spezifikationen in Kapitel 9 - Anhänge.
KÜHLVERBINDUNG
Um diese Verbindung auszuführen, für Flüssigkeits- und Ansaugleitungen sorgen, gemäß den Durchmessern der Anschlüsse an der
Maschine.
Die empfohlenen Durchmesser sind bis zu Längen von max.10 Metern gültig. Bei höheren Längen die Durchmesser so
dimensionieren, dass eine korrekte Gasgeschwindigkeit garantiert werden kann.
Die Leitungen müssen bei den Kurven, bei den Schweißungen und alle 1,5 - -2 Meter an graden Strecken an den Wänden befestigt
werden.
Abbildung 5 – Positionierung des Kondensators – Verdampfers.
ISOLIERUNG DER SAUGLEITUNG
Bei einer Verdampfungstemperatur unter -10 °C, müssen die Saufleitungen mit einem kondensationsverhütendem Rohr mit einer
Dicke von 13 mm isoliert werden, um die Überhitzung einzuschränken.
RÜCKLAUF DES ÖLS
Alle Systeme müssen so entworfen werden, dass sie in jedem Fall den Rücklauf des Öls zum Kompressor sicherstellen können. In der
in Abbildung 5 dargestellten Situation, mit der Kondensatoreinheit oberhalb des Verdampfers positioniert, ist es wichtig, alle 2 m
Höhenunterschied Siphons auf der Saugleitung vorzusehen, um den Rücklauf des Öls zum Kompressor zu gewährleisten. Auf jeden
Fall ist es wichtig bei horizontalen Strecken, dass die Saugleitung eine Neigung von mindestens 3% in Richtung Kompressor hat
(Abbildung 6).
Legende
S = Saugrohr
D = zuflussrohr
Sf = Siphon Wasserabfluss
R = Abflusswiderstand (nur für die Modelle MBP und LBP)
off
on
set
off
on
set

Table of Contents

Related product manuals