EasyManua.ls Logo

RM 700 Series - Page 28

RM 700 Series
Print Icon
To Next Page IconTo Next Page
To Next Page IconTo Next Page
To Previous Page IconTo Previous Page
To Previous Page IconTo Previous Page
Loading...
INTRODUCTION
Translation of the original instructions
4
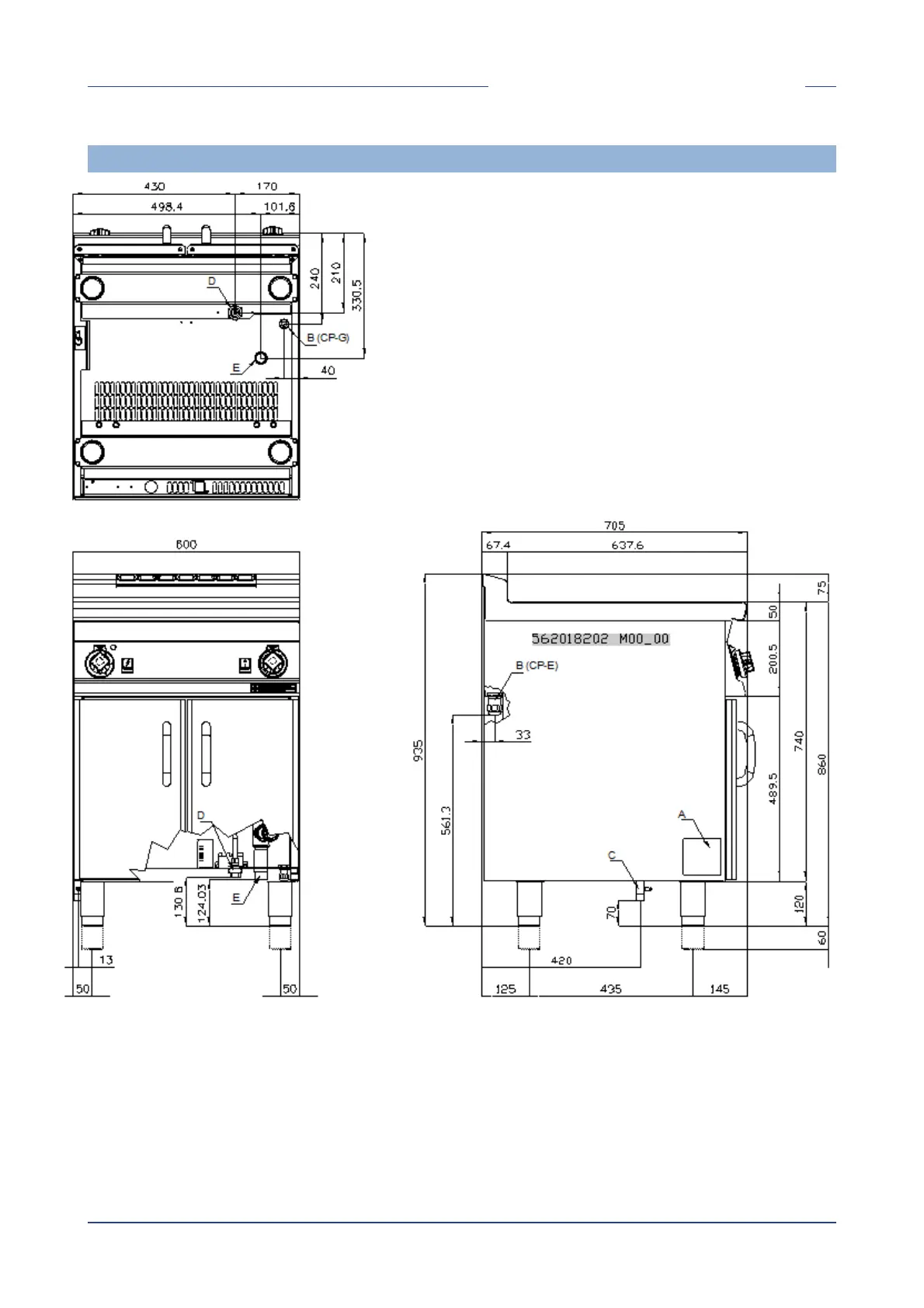
FIG. 2 CP-76G , CPA-76G
A Data Plate
B Electrical connection
D Water connection R 3/4"M
E Water drain R 1"M

Table of Contents