EasyManua.ls Logo

RM 700 Series - Instalační Výkres; Úvod

RM 700 Series
Print Icon
To Next Page IconTo Next Page
To Next Page IconTo Next Page
To Previous Page IconTo Previous Page
To Previous Page IconTo Previous Page
Loading...
ÚVOD
Překlad návodu z původního jazyka
3
1 ÚVOD
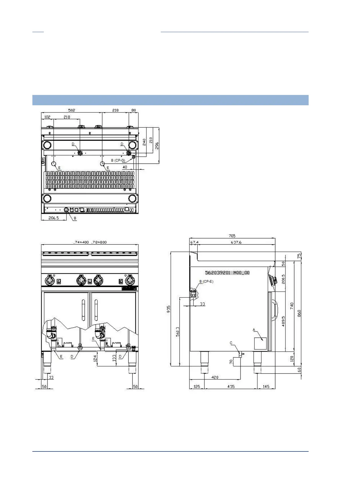
1.1 Instalační výkres
OBR. 1 CP-7..E
A Typový štítek
B Elektrické zapojení
D Připojení vody R 3/4”M
E Vypouštění vody R 1”M

Table of Contents