EasyManua.ls Logo

RM 700 Series - Page 52

RM 700 Series
Print Icon
To Next Page IconTo Next Page
To Next Page IconTo Next Page
To Previous Page IconTo Previous Page
To Previous Page IconTo Previous Page
Loading...
WSTĘP
Instrukcje przetłumaczone z języka oryginalnego
4
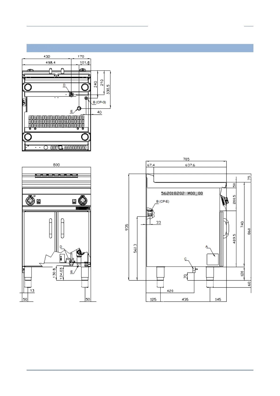
RYS. 2 CP-76G , CPA-76G
A Tabliczka znamionowa
B Podłączenie elektryczne
D Podłączenie wody R 3/4"M
E Odprowadzanie wody R 1"M

Table of Contents