EasyManua.ls Logo

Roland DisCover 5 - Advanced Playback Features

Roland DisCover 5
44 pages
To Next Page IconTo Next Page
To Next Page IconTo Next Page
To Previous Page IconTo Previous Page
To Previous Page IconTo Previous Page
Loading...
A
B
C
D
E
F
G
H
I
L
M
N
O
P
Q
R
S
T
U
J
K
12345678910 12131415161718192021222324252627282930
19
11
Discover5
Dec, 2002
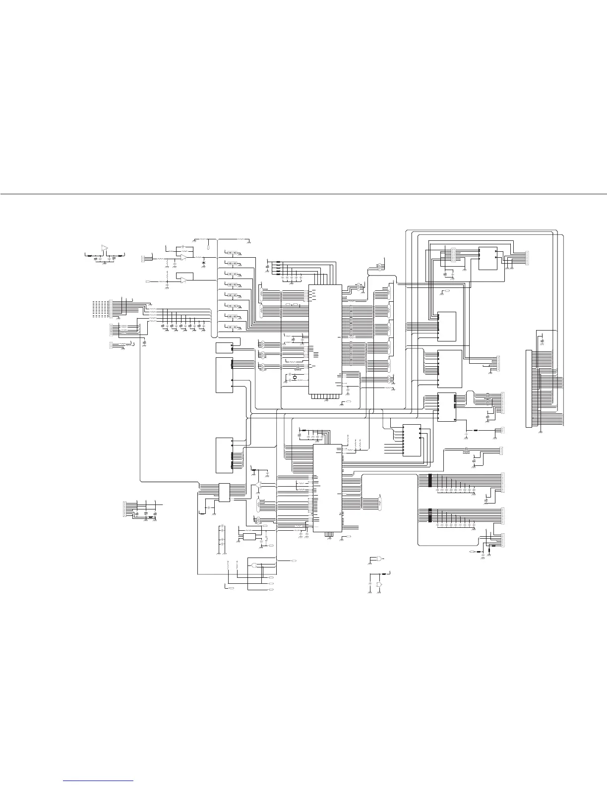
CIRCUIT DIAGRAM (MAIN PCB ASSY)
CONTROL BUS
ADDRESS BUS
DATA BUS
A[0..21]
D[0..15]
AFTER_TOUCH
BENDER
MODULATION
EXPRESSION
BALANCE
To RIGHT CONTR. B
(CN1)
TO AFTER TOUCH
LSSC7
VLCD
RESET
MIDI-A RX
XRST
MODULATION
BENDER
PART_BAL
FOOT PED.
AFT
DBEAM
DBEAM
TOUCHY
TOUCHX
TOUCHX
TOUCHY
REFGND
REF5V
MODULATION
BENDER
PART_BAL
-VCC
AGND
VCC
PMUX2
PMUX1
PMUX0
TOUCHY
TOUCHX
To MIDI B.
(CN1)
MIDI-A TX
TO AUDIO B.
(CN7)
RXD1
XRST
RXD0
TXD1
TXD0
BCKC
SDDA1
OUTP1
256FS
XRST
DGND
TO XPGS4 B. (CN1)
RXD1
TXD1
XRST
DGND
AGND
LEFT
AGND
RIGHT
TO AUDIO B.(CN18)
XRD
XIPC
XIPCINT
XWRL
A[0..7]
D[0..7]
10MHz
XRS
T
SOUT3
SIN3
SOUT4
SIN4
KEYSCAN SECTION
D[0..7]
A[0..1]
XRD
XWRL
XKEY
XKEYINT
XRST
10MHz
XRD
XWRL
XFDC
XFDCINT
XDACK1
XDREQ1
XFDCDEND
A[0..1]
D[0..7]
XIDXINT
RDYCNTL
FDCCONT
XFDCRST
BEAM CONTR. SECTION
BCLK
XRST
DBV
SDDA
OUTP1
BCKC
MUTE
256Fs
OUT_LEFT
OUT_RIGHT
XRST
XRD
XSMCS
XWRL
SMDIR
XSMRB
XSMEJ
XSMWP
SMCLE
XSMCE
SMALE
D[0..7]
D[0..15]
XRD
XWRL
YD
LP
XSCL
XD3
XD2
XD1
XD0
XRS
T
XLCD
SEL
DISPON
DISP_CON
A[0..21]
C-VIDEO
WE1
XLCDWAIT
MEMORY BANK SECTION
D[0..15]
XDWR
XRAS
XRD
XCASH
XCASL
XRST
XFLASH
XWRL
RYBY
WPCNT
A[0..21]
AN4
AN5 AN7
AN5
AN3
AN4
XCPUWAIT XCPUWAIT
XCS4 XCS4
XCS2 XCS2
AN3
AN7
AN2
SMCEL SMCLE
AN0
AN1
AN2 AN1
10MHz
XIPCINT
AN0
AN4
10MHz
SS3
SS2
SS1
SS0
SCD0
XGWAIT LS3 LLP
LS2
LS1
XCS4 LS0
XCS2
XSCNEN
LLP
MUTE
SCD0 SCD0 LS3
LS2
LS1
LS0
SS3
SS2
XIPCINT XIPCINT SS1
SS0
XSCNEN
10MHz
WPCNT
XLCD XLCD
WPCNT
RYBY
WPCNT
RYBY
RYBY
XDREQ1
RDYCNTL
XFDCRST
XIDXINT
FDCCONT
XFDCDEND
XFDCDEND
XFDCRST
XIDXINT
XDREQ1
RDYCNTL
FDCCONT
XFDCDEND
FDCCONT
XDREQ1
XFDCRST
RDYCNTL
TOUCH0
TOUCH1
TOUCH2
TOUCH3
TOUCH3
TOUCH2
TOUCH0
SCD7
SCD5
SCD2
SCD3
SCD3
SCD1
SCD7
SCD6
SCD6
SCD1
SCD3
SCD5
SCD7
SCD4
SCD4
SCD6
SCD2
SCD7
SCD1
SCD6
SCD4
SCD2
SCD5
EXENCA
EXENCA
EXENCB
EXENCB
TXD1
TXD1
TXD1
TOUCH1
XDWR
XCASH
XCASL
XDWR
XRAS
XCASH XCASH
XCASH
XCASL
XCASL
XRAS
XDWR
XRAS
XRAS
XCASL
XFLASH
XFDC
XKEY
XWRH
XPORT
XFLASH
XFLASH
XFDC
XKEY
XDACK1
XDACK1
XFDC
XIPC
XPORT
XKEY
XIPC
XWRH
XWRH
XWRH
XIPC
XDACK1
MUTE
AN6
AN6
AN5
SWAP_ROM
RXD1
RXD1
RXD1
XFDCINT
XFDCINT
XFDCINT
WVOUT
WVOUTWVOUT
XIRQ6
XKEYINT XGINT
XKEYINT
XKEYINT
XGINT
XGINT
XIRQ6
XSMCE
MUTE
XSMCS
SMCLE
XSMCE
SMALE
SMDIR
XSMCS
XSMCS
XLCDINT
20MHz
20MHz
XLCDINT
A14
A18
A3
XRD
A16
A9
A5
A[0..1]
A15
XSCL
A8
A4
XRD
XRST
A11
XRST
A3
XRD
A9
XD3
A[0..7]
A20
A0
A9
A21
A21
A13
A8
A18
A1
A1
A21
XD3
A15
A2
A7
A11
A21
YD
A4
A4
A0
XRD
XRST
A7
XRD
XRST
A19
XD1
XRST
LP
A[0..1]
A20
XRD
XRST
XRST
A16
XD2
XD2
XD1
XD0
A2
A17
A17
XRST
XD0
A14
A2
A8
A3
A6
A6
A0
A10
XRST
XRST
A14
A6
A13
XLCD
A[0..21]
A17
A20
A12
A10
A5
DISPON
A15
A12
A18
A1
A4
XSCL
A2
A20
A1
A19
A19
YD
A16
LP
A12
A7
A3
A0
XRD
A11
A13
A5
XRD
XRD
XRD
A19
A10
A5
SMDIRSMDIR
XSMCE
XLCDWAIT
XWRL
XWRL
XWRL
XWRL
XWRL
XWRL
XWRL
XWRL
XWRL
XWRL
XWRL
XPORT
DISPON
D[0..7]
D4
D2
D5
D3
D4
D2
D12
D11
D6
SWAP_ROM
D13
D12
D8
D11
D6
D5
D1
D13D13
D9
D9
D11
D7
D2
D2
D12
D[0..15]
D1
D9
D10
D6
D1
D4
D3
D[0..7]
D1
D7
D8
D14D14
D0
D6
D[0..7]
D[0..15]
D3
D14
D0
D5
D1
D3
D15
D15
D10
D3
D4
D15
D7
D2
D10
D5
D4
D7
D0
D0
D0
D8
D7
D6
D5
XSTYLE
XWRH
XGWAIT
XLCDWAIT
XCPUWAIT
PMUX2
PMUX1
PMUX0
PMUX0
PMUX1
PMUX2
D[0..7]
SMALE
SMALE
D
D
D
D
D
D
D
REF
REF
REF
REF
REF
REF
REF
REF
REF
REFREFREFREFREF
A
D
D
D
D
D
D
REF
A
DA
REF
D
D
D
D
D
D
D
REF
5VD
5VD5VD
5VD
5VREF5VD
5VREF
5VREF
5VREF
5VREF
5VREF
5VREF
5VREF
5VREF
+12V -12V
5VD
5VD
5VD
5VD
5VD
5VD
+12V
5VREF
5VREF
-12V
-12V
+12V -12V 5VD
5VD
+12V
5VD
5VD
5VD
5VD
5VD
5VD
5VD
5VD
5VD
-12V
5VREF
5VD
D
-12V
+12V
D
D
REF
5VD
D
D
REF
REF
REFREF
REF
D
5VD
D
5VD
5VD
5VD
5VD
5VD
5VD
D
D
D
D
D
D
D
DD
D
DD
5VD
D
A
5VD5VD
D
C2
10uF16s
D1
DA204K
21
3
D3
DA204K
21
3
D4
DA204K
21
3
D5
DA204K
21
3
D6
DA204K NIU
21
3
D7
DA204K
21
3
D8
DA204K
21
3
C9
100nFs
C10
100nFs
C11
100nFs
C12
100nFs
C13
100nFs
C15
33uF25s
C17
33uF25s
R3
470s
C20
22pFs
C21
22pFs
C22
22pFs
C23
22pFs
C24
22pFs
C25
22pFs
C26
22pFs
C27
22pFs
C28
22pFs
C29
22pFs
C30
22pFs
C31
22pFs
C32
22pFs
C33
22pFs
C34
22pFs
C35
22pFs
C36
22pFs
C37
22pFs
R5
10Ks
R6
10Ks
C38
10uF16s
C39
100nFs
C40
100nFs
C41
100nFs
C42
100nFs
RA3
4X10Ks
4 5
6
7
8
3
2
1
C45
NIU
R11
0s NIU
R13
100s
R15
100s
R16
100s
R17
100s
C46
NIU
C47
NIU
C48
NIU
C49
NIU
C50
10uF16s
RA6
8X10Ks
4
5
6
7
8
9
3
2
1
RA7
8X10Ks
4
5
6
7
8
9
3
2
1
RA8
8X10Ks
4
5
6
7
8
9
3
2
1
RA9
8X10Ks
4
5
6
7
8
9
3
2
1
RA10
8X10Ks
4
5
6
7
8
9
3
2
1
RA11
4X10Ks
4 5
6
7
8
3
2
1
R40
NIU
D10
BZX79C5V1 NIU
1 2
L1
NIU
TP
TP1
TP
L2
EXCCL4532U1
L3
EXCCL4532U1
L4
EXCCL4532U1
L5
EXCCL4532U1
L6
EXCCL4532U1
L7
EXCCL4532U1
L8
EXCCL4532U1
L9
EXCCL4532U1
IC5
M51953A
2
3
5
4
1
NC
GND
RES
CAP
VCC
R51
47sR52
47s
R54
100s
R55
0s
SW1
NIU
RA18
4X47s
1 8
2 7
3 6
4 5
RA19
4X47s
1 8
2 7
3 6
4 5
RA20
4X47s
1 8
2 7
3 6
4 5
RA21
4X47s
1 8
2 7
3 6
4 5
RA22
4X47s
1 8
2 7
3 6
4 5
RA23
4X47s
1 8
2 7
3 6
4 5
RA24
4X47s
1 8
2 7
3 6
4 5
RA25
4X47s
1 8
2 7
3 6
4 5
RA26
4X47s
1 8
2 7
3 6
4 5
C85
100nFs
C86
100nFs
C88
100nFs
C89
100nFs
TP
TP5
TP
L28
BK2125HM102
L29
BK2125HM102
L30
BK2125HM102
L31
BK2125HM102
L32
BK2125HM102
L33
BK2125HM102
L34
BK2125HM102
L35
BK2125HM102
L36
BK2125HM102
L37
BK2125HM102
L38
BK2125HM102
R94
0s
R95
0s
C69
100uF25
C70
100uF25
C71
100uF16s
C14
100nFs
C16
100nFs
C3
10nFs
C1
33uF25s
R2
1Ks
R7
47s
R10
470s NIU
R12
100s NIU
R56
100s
C76
10nFs
RA32
4X10Ks
4 5
6
7
8
3
2
1
X1
MA_406_20MHz
TP
TP11
TP
R115
10Ks
RA17
4X47s
1 8
2 7
3 6
4 5
R4
10Ks
RA15
8X10Ks
4
5
6
7
8
9
3
2
1
RA4
4X10Ks
4 5
6
7
8
3
2
1
C93
33uF25s
CN9
5045-09A
3
4
5
6
7
8
2
1
9
CN10
5045-09A
3
4
5
6
7
8
2
1
9
CN1
53014-1210
3
4
5
6
7
8
2
1
9
10
11
12
C8
100nFs
C7
100nFs
C6
100nFs
C5
100nFs
C4
100nFs
C18
12pFs
C19
12pFs
R50
1Ks
TP
TP2
niu
TP
TP3
ni
u
TP
TP4
niu
TP
TP7
niu
C75
220nF
16V 5%
RA5
4X10Ks
4 5
6
7
8
3
2
1
RA35
4X10Ks
4 5
6
7
8
3
2
1
L43
BK2125HM102
R41
4K7s
NIU
RA14
4X10Ks
4 5
6
7
8
3
2
1
C68
1uFs
-
IC1B
UPC4570G
6
5
7
-
IC1A
UPC4570G
2
3
1
-
IC1C
UPC4570G
8
4
CN24
B7B-PH-K-S
3
4
2
1
5
6
7
R1
100Ks
R151
100s
R152
100s
R153
100s
R154
100s
L51
EXCCL4532U1
L26
BK2125HM102
L23
BK2125HM102
L25
BK2125HM102
L24
BK2125HM102
L21
BK2125HM102
L27
BK2125HM102
L22
BK2125HM102
RA12
4X100s
1 8
2 7
3 6
4 5
RA13
4X100s
1 8
2 7
3 6
4 5
C188
33uF25s
RA45
4X100s
1 8
2 7
3 6
4 5
CN27
53014-0310
3
2
1
CN28
52411-0501
50
49
48
47
46
45
44
43
42
41
40
39
38
37
36
35
34
33
32
31
30
29
28
27
26
25
24
23
22
21
20
19
18
17
16
15
14
13
12
11
10
9
8
7
6
5
4
3
2
1
50
49
48
47
46
45
44
43
42
41
40
39
38
37
36
35
34
33
32
31
30
29
28
27
26
25
24
23
22
21
20
19
18
17
16
15
14
13
12
11
10
9
8
7
6
5
4
3
2
1
CN3
53014-1110
3
4
5
6
7
8
2
1
9
10
11
R14
100s
R155
4K7s
CN4
53014-1010
3
4
5
6
7
8
2
1
9
10
TP
TP19
TP
CN29
53014-0410
3
4
2
1
TP
TP20 TP
CN7
53014-0810
3
4
5
6
7
8
2
1
C193
100nFs
CN2
53014-0310 NIU
3
2
1
C202
33uF25s
D2
DA204K
21
3
IC4
HD6437034ADxxx
{1ST PART FIELD}
77
15
43
70
75
83
3
12
22
31
40
52
61
72
96
48
102
101
100
98
95
94
93
88
87
107
108
109
110
47
46
45
44
42
41
39
38
37
36
35
34
33
32
30
29
28
27
26
25
24
23
21
20
19
18
17
16
14
13
11
10
9
8
7
6
5
4
76
97
92
90
89
86
91
2
1
112
111
69
66
67
68
65
64
106
79
73
74
71
78
84
99
56
55
82
81
54
53
80
51
50
49
62
60
59
58
57
63
85
105
104
103
VPP
VCC
VCC
VCC
VCC
VCC
VSS
VSS
VSS
VSS
VSS
VSS
VSS
VSS
VSS
CS0
PB4/TP4/TIOCA4
PB3/TP3/TIOCB3
PB2/TP2/TIOCA3
PB1/TP1/TIOCB2
PC7/AN7
PC6/AN6
PC5/AN5
PC1/AN1
PC0/AN0
PB8/TP8/RXD0
PB9/TP9/TXD0
PB10/TP10/RXD1
PB11/TP11/TXD1
A21
A20
A19
A18
A17
A16
A15
A14
A13
A12
A11
A10
A9
A8
A7
A6
A5
A4
A3
A2
A1
A0(HBS)
AD15
AD14
AD13
AD12
AD11
AD10
AD9
AD8
AD7
AD6
AD5
AD4
AD3
AD2
AD1
AD0
NMI
PB0/TP0/TIOCA2
PC4/AN4
PC3/AN3
PC2/AN2
AVREF
AVSS
IREQ7/TP15
IREQ6/TP14
IREQ5/TP13/SCK1
IREQ4/TP12/SCK0
IREQ3/DREQ1
IREQ0/DACK0
IREQ1/DREQ0
IREQ2/DACK1
PA11/TIOCB1
PA10/TIOCA1
VSS
RESET
EXTAL
XTAL
CK
WDTOVF
VCC
VCC
CS7/WAIT
CS6
MD2
MD1
CS5/RAS
CS4
MD0
CS3/CASL
CS2
CS1/CASH
PA8/BREQ
PA7/BACK
RD
PA5/WRH
WRL
PA9/IREQOUT/AH
AVCC
PB7/TOCXB4
PB6/TOCXA4
PB5/TP5/TIOCB4
R8
10Ks
RA1
8X10Ks
4
5
6
7
8
9
3
2
1
C44
100nFs NIU
C178
22pFs
R9
470s NIU
IC39
TC7S32F
1
2
4
53
C77
10nFs
C216
100uF16s
C217
100nFs
CN25
AMPC1-2716P
3
4
5
6
7
8
2
1
9
10
11
12
13
14
15
16
RA2
8X10Ks
4
5
6
7
8
9
3
2
1
R112
10Ks
R108
10Ks
CN6
5045-08A
3
4
5
6
7
8
2
1
L44
EXCCL4532U1
L45
EXCCL4532U1
IC3
M60205-0601FP
367993023
2
29
52
79
1
28
33
40
53
80
6
4
5
25
66
65
64
63
62
61
60
59
3
67
69
68
74
73
72
71
78
77
76
75
70
81
89
88
87
86
85
84
83
82
90
91
92
100
99
98
97
96
95
94
93
23
22
21
20
19
18
17
16
15
14
13
12
11
10
9
8
7
34
35
36
31
32
37
41
39
38
24
55
54
51
50
49
48
47
46
45
44
43
42
58
57
56
27
30
26
VDD
VDD
VDD
VDD
VSS
VSS
VSS
VSS
VSS
VSS
MIDI IN
WRHO
WRLO
WAIT IN
PORT7
PORT6
PORT5
PORT4
PORT3
PORT2
PORT1
PORT0
PWM 2
PWM 1
ENC B
ENC A
SS3
SS2
SS1
SS0
LS3
LS2
LS1
LS0
SSEN
LLCK
PD7
PD6
PD5
PD4
PD3
PD2
PD1
PD0
RS/CD
R/W
LE/RD
LCD 7
LCD 6
LCD 5
LCD 4
LCD 3
LCD 2
LCD 1
LCD 0
A21
A20
A19
A5
A4
A3
A2
A1
A0
D7
D6
D5
D4
D3
D2
D1
D0
XRD
XWRH
XWRL
XDREQ
XDACK
WAIT OUT
CS6
CS4
CS2
XIREQ
ECS11
ECS10
ECS9
ECS8
ECS7
ECS6
ECS5
ECS4
ECS3
ECS2
ECS1
ECS0
EXTINT2
EXTINT1
EXTINT0
CLK IN
CLK OUT
RESET
L52
N2012Z601T2
C283
47pFs
C201
47uF16s NIU
CN30
5045-03A
3
2
1
C43
47pFs
C192
100nFs
CN23
53014-1310
3
4
5
6
7
8
2
1
9
10
11
12
13
TP
TP21 TP
RA16
8X10Ks
4
5
6
7
8
9
3
2
1
FL2
ELKE471FA
2
1 3
IC40
74HC273
32
45
76
89
1312
1415
1716
1819
11
110
20
D1Q1
D2Q2
D3Q3
D4Q4
D5Q5
D6Q6
D7Q7
D8Q8
CLK
CLRGND
VCC
IC102C
TC7W08F
84
L55
EXCCL4532U1
C284
100nFs
IC102B
TC7W08F
5
6
3
IC102A
TC7W08F
1
2
7
TP
TP22
TP
TP
TP23
TP
TP
TP24
TP
R226
10Ks
R225
10Ks
R234
100s
R235
100s
C87
33uF16s
EXPJ
EXPJ
To LCD CONTR. B
(CN6)
To LCD CONTR. B
(CN5)
To AUDIO B.
(CN9)
DAC SECTION
SUBCPU SECTION
FDC SECTION
LCD CONTR. SECTION
SMART CARD SECTION
To LCD CONTR.B.
(CN2)
To RIGHT CONTROL B.
(CN6)
To RIGHT CONTROL B.
(CN5)
To RIGHT CONTROL B.
(CN6)
To MIDI B.
(CN2-)

Other manuals for Roland DisCover 5

Related product manuals