EasyManua.ls Logo

Ropex RES-225 - Line Filter; Current Transformer PEX-W3

Ropex RES-225
71 pages
Print Icon
To Next Page IconTo Next Page
To Next Page IconTo Next Page
To Previous Page IconTo Previous Page
To Previous Page IconTo Previous Page
Loading...
Installation
Page 16 RES-445
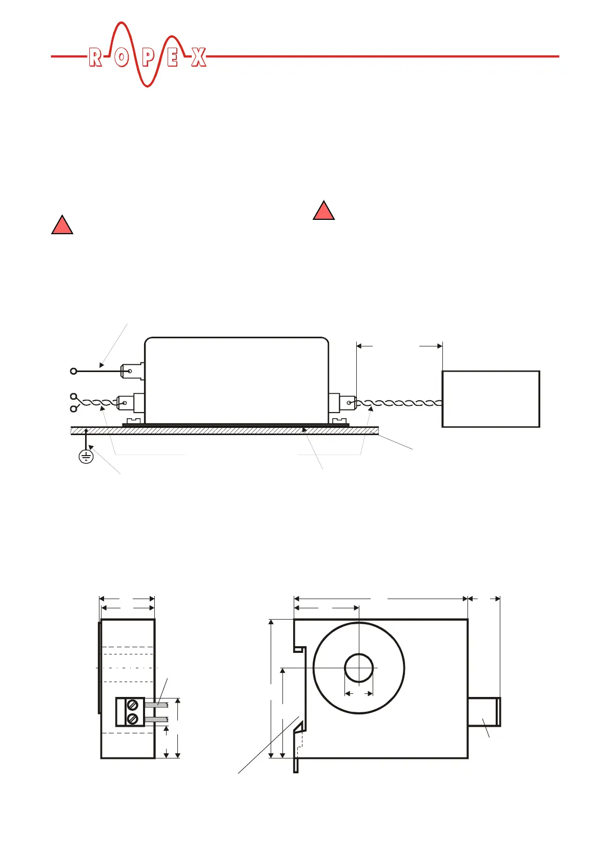
8.4 Line filter
To comply with EMC directives – corresponding to
EN 50081-1 and EN 50082-2 – RESISTRON control
loops must be operated with line filters.
These filters damp the reaction of the phase-angle con-
trol on the line and protect the controller against line
disturbances.
The use of a suitable line filter is part of the
standards conformity and a prerequisite of
the CE mark.
ROPEX line filters are specially optimized for use in
RESISTRON control loops. Providing that they are
installed and wired correctly, they guarantee comp-
liance with the EMC limit values.
You can find the exact specification of the line filter in
the ROPEX Application Report calculated for your par-
ticular heatsealing application.
For more technical information: "Line filter" docu-
mentation.
It is permissible to supply several
RESISTRON control loops with a single line
filter, providing the total current does not exceed
the maximum current of the filter.
The wiring instructions contained in section 8.3 "Power
supply" on page 15 must be observed.
8.5 Current transformer PEX-W3
The PEX-W3 current transformer supplied with the
RESISTRON temperature controller is an integral part
of the control system. The current transformer may only
be operated if it is connected to the temperature con-
troller correctly ( section 8.3 "Power supply" on
page 15).
!
!
LINE
PE
Large cross-section
wire to ground
Large cross-section
wire to ground
Large frame contact surface
Do not lay parallel
Mounting plate (galvanized)
max. 1m
ROPEX
temperature
controller
Snap-on for DIN-rail 35 x 7,5mm or 35 x 15mm (DIN EN 50022)
terminal
block
terminal
wires
14
60
24
75
14
23
28
26
39
12

Table of Contents

Related product manuals