EasyManua.ls Logo

Rotex GSU 25 - Page 46

Default Icon
64 pages
Print Icon
To Next Page IconTo Next Page
To Next Page IconTo Next Page
To Previous Page IconTo Previous Page
To Previous Page IconTo Previous Page
Loading...
[ 46 ]
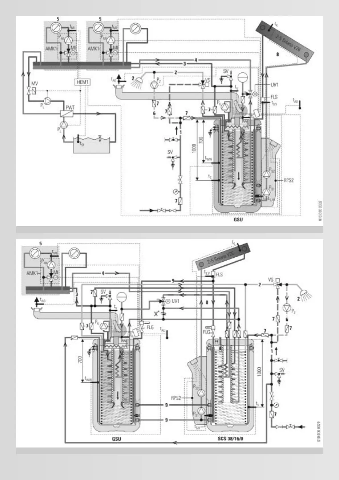
Fig. 5.3.5: Hydraulic system connection with heating circuit extension
1)
Fig. 5.3.6: Hydraulic system connection GSU with higher solar output proportion
1) 2)

Table of Contents

Related product manuals