EasyManua.ls Logo

Rotex GSU 25 - Page 47

Default Icon
64 pages
Print Icon
To Next Page IconTo Next Page
To Next Page IconTo Next Page
To Previous Page IconTo Previous Page
To Previous Page IconTo Previous Page
Loading...
[ 47 ]
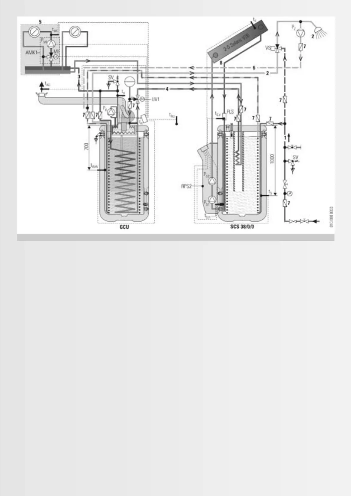
Fig. 5.3.7: Hydraulic system connection GCU with solar pre-heating
1)
1)
The connection diagram shown makes no claim as to its completeness and is no replacement for careful system engineering.
2)
Note: The mechanical level indicator in the Sanicube Solaris cannot indicate, with this type of control, since the overflow connection on the
GSU is arranged lower down, thereby determining the fill level of the overall control.

Table of Contents

Related product manuals