EasyManua.ls Logo

SAHP BMTB 130 - Refrigerant Handling and Pressure Testing

Default Icon
44 pages
Print Icon
To Next Page IconTo Next Page
To Next Page IconTo Next Page
To Previous Page IconTo Previous Page
To Previous Page IconTo Previous Page
Loading...
16| SAHP - BMTB Installation Manual
V1 Mar 2019US - SD667052
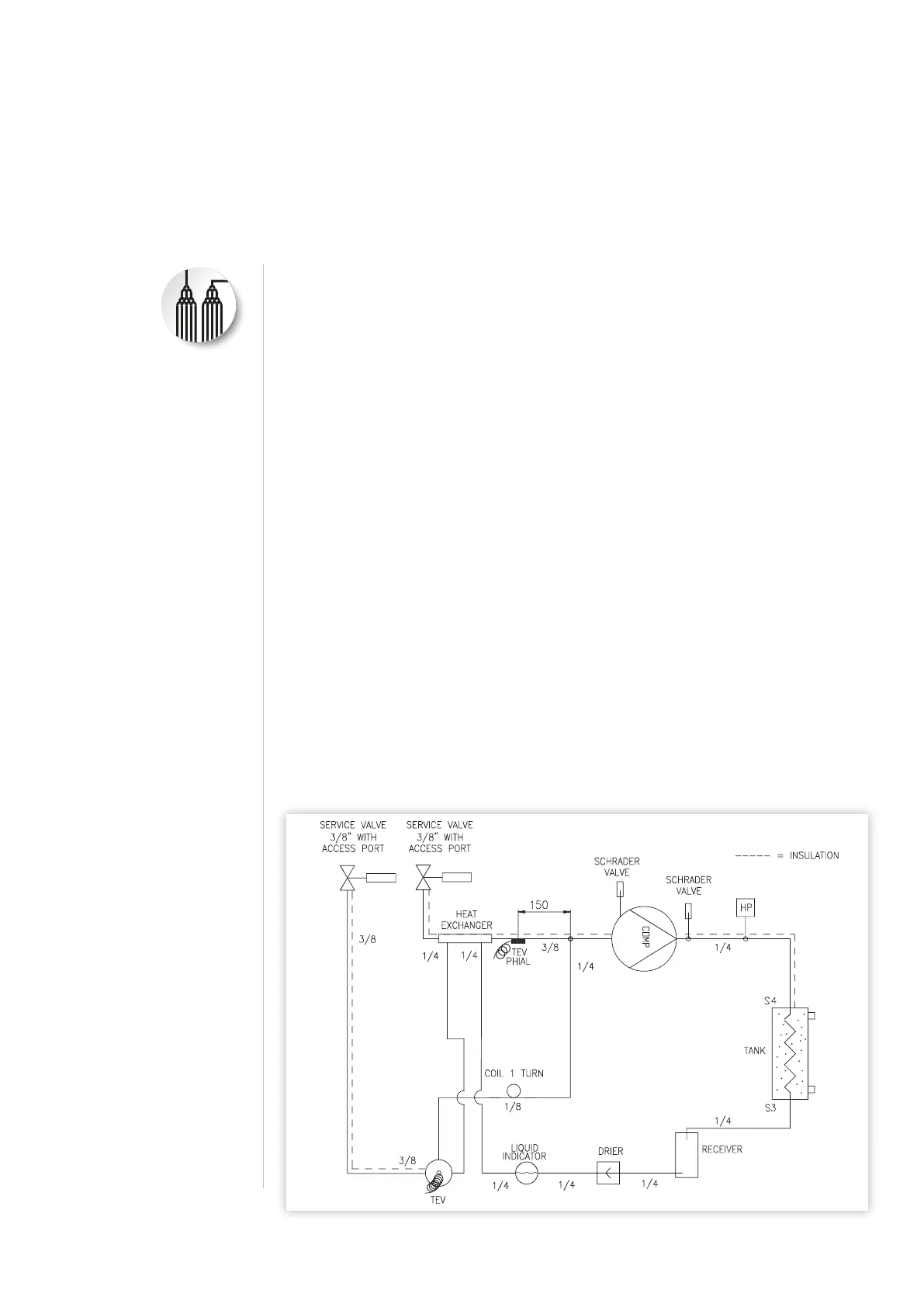
5.13 Ensure that refrigeration quality copper pipes only are used
to connect the Thermodynamic Panel to the BMTB. It must
also be ensured all refrigeration pipework is insulated
withexibleanti-condensationinsulation.
NOTE: Direct contact between the refrigeration outlet and
refrigeration inlet line shall be avoided to prevent energy losses in
the system.
NOTE: Ensure the BMTB liquid outlet is connected to the
Thermodynamic Panel liquid inlet, and the BMTB suction side is
connected to the Thermodynamic Panel gas outlet.
NOTE: Do not loosen or open service ports until all connections are
made and the system has been fully leak checked and vacuumed.
NOTE: Do not Cover the brass plate nuts with the anti-vibration
insulation as this may create a freeze / thaw action on the brass which
may result in the are nut braking down over time.
5.14 Nitrogen Pressure Test
First pressure test the refrigeration circuit with Oxygen Free
Nitrogen.Nitrogencanbeintroducedusingtheserviceport
connectionasshowningure5.
!
BMTB
Fig 6
Thermodynamic unit
Refrigeration
circuit
REFRIGERATION
INSTALLATION continued
SECTION 5

Related product manuals