EasyManua.ls Logo

SAME RUBIN 160 - Hydraulic Diagram (1;3)

Default Icon
41 pages
Print Icon
To Next Page IconTo Next Page
To Next Page IconTo Next Page
To Previous Page IconTo Previous Page
To Previous Page IconTo Previous Page
Loading...
10-4
HYDRAULIC DIAGRAM (1/3)
P
P
X
7/16-20 UNF-2B
p max (DR):
200 bar
p (FR):
16/22 bar
S
L1
L
B10 = 75
B
A
A
B
A
B
5 - 80 /min
R
Y
P
A
220 bar
R1
DOWN
UP
AB
F
2
0
1.2
160 bar
1
P
F
2
01
R
xX
d
c
20
1
F
22 bar
FP
DMV
Dal freno sinistro
From L.H. brakes
11 bar
T
B
E
N
P
LS
Y1
Y2
160 m
Q
MAX.
103 /min
45.0 cm
3
/giro max
(29-113
/min)
i = 31/29
5
/min
D000
3120
SOLLEVATORE ANTERIORE (OPTIONAL)
FRONT LIFT (OPTIONAL)
SOSPENSIONE ANTERIORE (OPTIONAL)
FRONT SUSPENDED AXLE (OPTIONAL)
SECONDARY SHAFT
Ø 1.5
R
Y
P
5 - 80 /min
R
Y
P
2
01
A
B
R
Y
P
5 - 80 /min
R
Y
P
1.2
160 bar
R
Y
P
R
xX
R
Y
P
FRENO RIMORCHIO (OPTIONAL)
TRAILER BRAKE (OPTIONAL)
OPTIONAL
OPTIONAL
OPTIONAL
OPTIONAL
OPTIONAL
1
2
3
4
4
2
5
5
6
77
26
25
24
23
20
19
8
10
9
8
11
12
13
14
13
15
16
17
18
SCATOLA CAMBIO ANTERIORE
FRONT GEAR BOX
SCATOLA CAMBIO POSTERIORE
REAR GEAR BOX
OPTIONAL
OPTIONAL
OPTIONAL
21
22
V
0
= 0.7
P
0
= 130 bar
16
/min
16
/min
70 bar
V
0
= 0.7
P
0
= 130 bar
V
0
= 1.4
P
0
= 65 bar
V
0
= 0.75
P
0
= 140 bar
A
P
T
LS
T
LS
210 bar
210 bar
S
UP
DOWN
H
P
T
M12x1.5
1,5 bar
3,5 bar
2,75 bar
BG2
G1
M2
FO
FI
235 bar
M1
(41-160 /min)
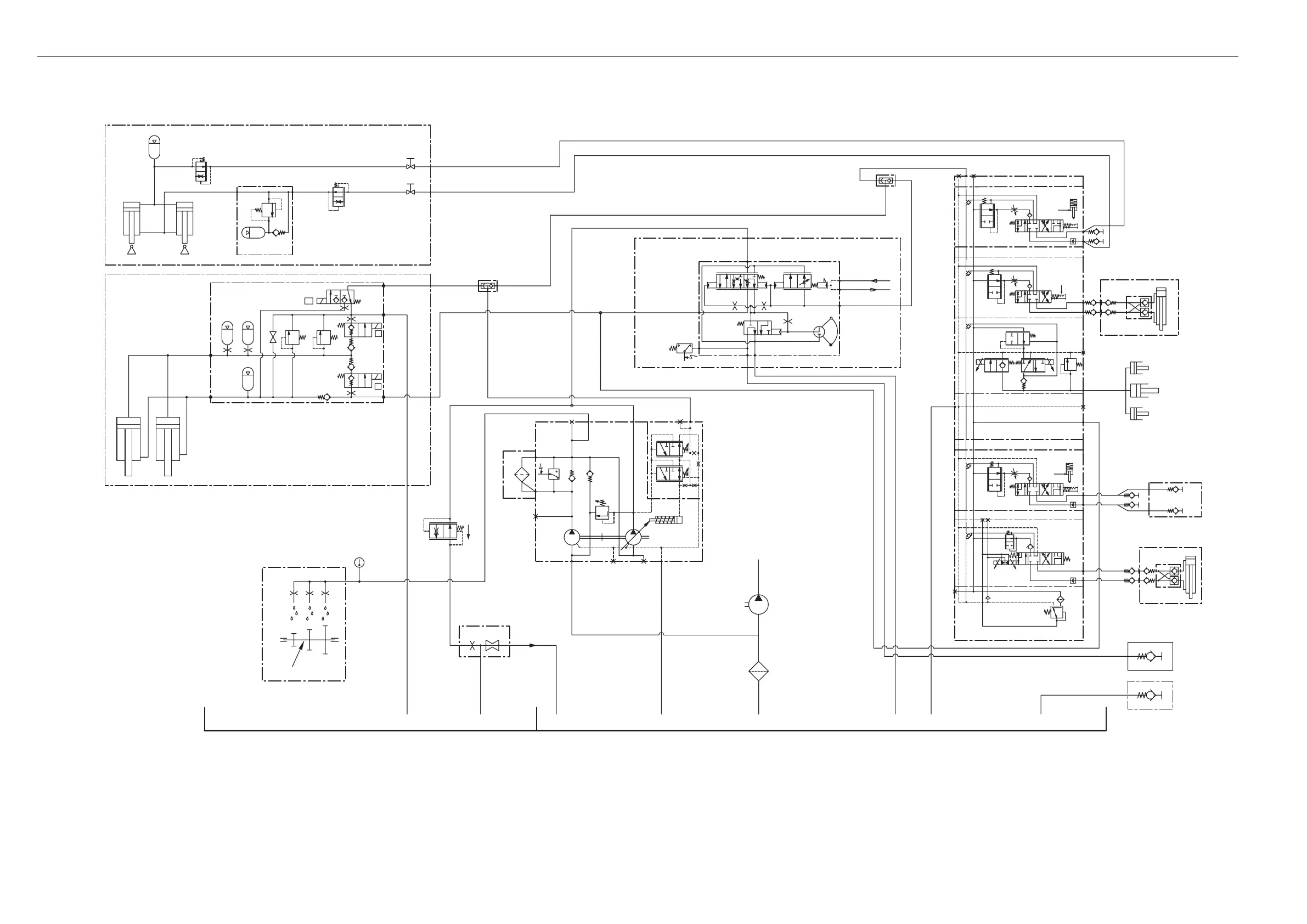
HYDRAULIC SYSTEM HYDRAULIC DIAGRAM (1/3)
1 - Accumulator
2 - Flow control valve
3 - Damper
4 - Front lift shut-off cock
5 - Front lift cylinders
6 - Front suspension control valve block
7 - Front axle suspension cylinders
8 - Bistable valve
9 - Trailer braking valve
10 - NC pressure switch
11 - Auxiliary services control valve
12 - Hydraulic lift rod cylinder
13 - Auxiliary lift cylinders
14 - Lift cylinder
15 - Quick-action front couplers
16 - Top link hydraulic cylinder
17 - Quick-action trailer brake coupler
18 - Quick-action drain coupler
19 - Wire mesh filter
20 - Variable displacement pump
21 - Filter (10
m
n)
22 - Clogged filter sensor
23 - Hydraulic ejector
24 - Flow control valve
25 - Temperature sensor
26 - Secondary shaft lubrication

Related product manuals