EasyManua.ls Logo

Samoa PUMPMASTER 2 - Page 27

Samoa PUMPMASTER 2
32 pages
Print Icon
To Next Page IconTo Next Page
To Next Page IconTo Next Page
To Previous Page IconTo Previous Page
To Previous Page IconTo Previous Page
Loading...
27
R. 03/18 835 807
SAMOA Industrial, S.A. · Pol. Ind. Porceyo, I-14 · Camino del Fontán, 831 · 33392 - Gijón - Spain · Tel.: +34 985 381 488 · www.samoaindustrial.com
2018_03_15-11:00
RU
ПРИМЕЧАНИЕ: Давление подаваемого сжатого воздуха должно
находиться в диапазоне от 3 до 10 бар (40 - 140 фунт/дюйм2),
особо рекомендуется рабочее давление 6 бар (90 фунт/дюйм2).
Для перекрытия подачи сжатого воздуха в конце рабочего дня
необходимо установить отсечной клапан. (Если не перекрыть
подачу воздуха, то возникновение утечки масла в выпускном
контуре масла может привести к автоматическому включению
насоса, который начнет опорожнять емкость).
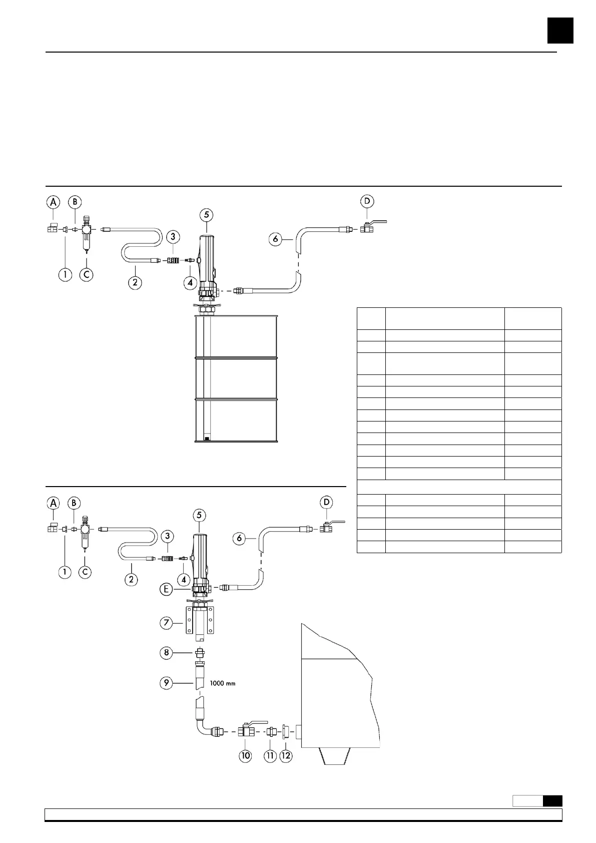
НАСОС, МОНТИРУЕМЫЙ НА МЕТАЛЛИЧЕСКОЙ БОЧКЕ
Рис. 3a
МОНТИРУЕМЫЙ НА СТЕНЕ
Рис. 3b
ВАРИАНТ СТАНДАРТНОЙ УСТАНОВКИ
На рисунках 3a и 3b показан вариант стандартной установки
насоса со всеми приспособлениями, рекомендуемыми для его
нормальной работы.
поз
Название
Номер по
каталогу
1 Штуцер 945516
2 Воздушный шланг 246010
3
Быстроразъемное
соединение
253114
4 Соединительный патрубок 259014
5 Насос 353110
6 Выпускной шланг 362101
7 Настенный кронштейн 360102
8 Штуцер 945552
9 Всасывающий шланг 362400
10 Клапан 950306
11 Штуцер 945555
12 Штуцер 945565
Дополнительные устройства
A Клапан 950319
B Штуцер 239000
C Фильтр с регулятором 240500
D Клапан 950300
E Предохранительный клапан 609007
1000 MM
1500 MM
1000 MM
1500 MM

Related product manuals