EasyManua.ls Logo

Samson 5006-0 - Accessories for Connections

Samson 5006-0
34 pages
Print Icon
To Next Page IconTo Next Page
To Next Page IconTo Next Page
To Previous Page IconTo Previous Page
To Previous Page IconTo Previous Page
Loading...
2.5 Accessories for connections
Open product connections are protected
against contamination by means of NBR
plugs.
Required screw fittings, plugs, venting
screws and screw joints with restrictions
used to dampen vibrations caused by the
process medium (especially when measur-
ing gases) must be ordered separately.
The screw fittings and SAMSON valve
blocks are listed together with their order
numbers in the Data Sheet T 9555 EN.
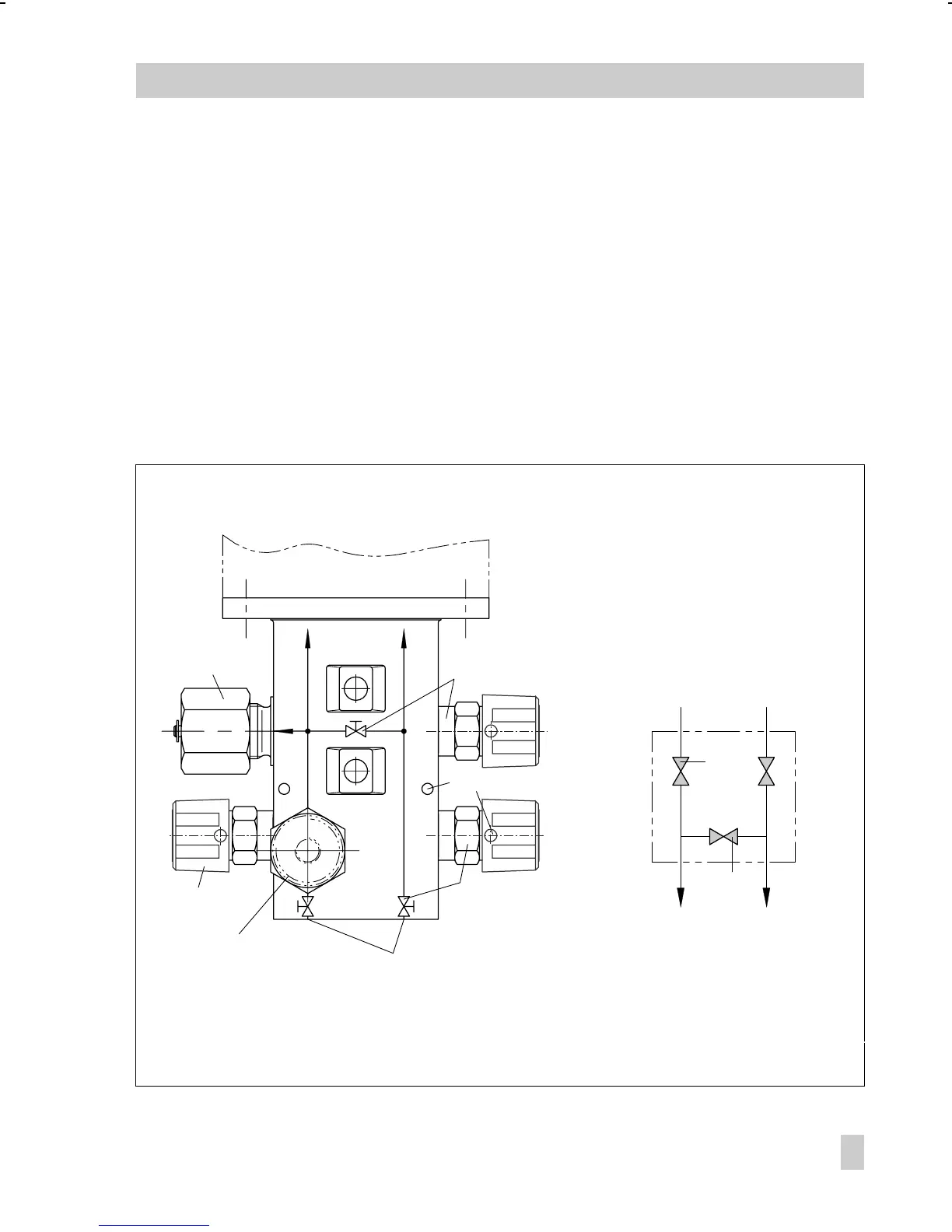
Shut-off valve (-)
Fig. 4 SAMSON valve block
–+
Test connection
Equalizing valve
(lead-sealable)
Shut-off valve (+)
Connection for
measuring lines
Pressure gauge
connection
Bore hole for
sealing wire
Media 6
1Shut-off valve
2 Equalizing valve
Fig. 5
Shut-off and equalizing valves, separate or
combined in a three-way or five-way valve block
1
2
From the point of measurement
To indicating unit
EB 9527-1 EN
11
Installation

Related product manuals