EasyManua.ls Logo

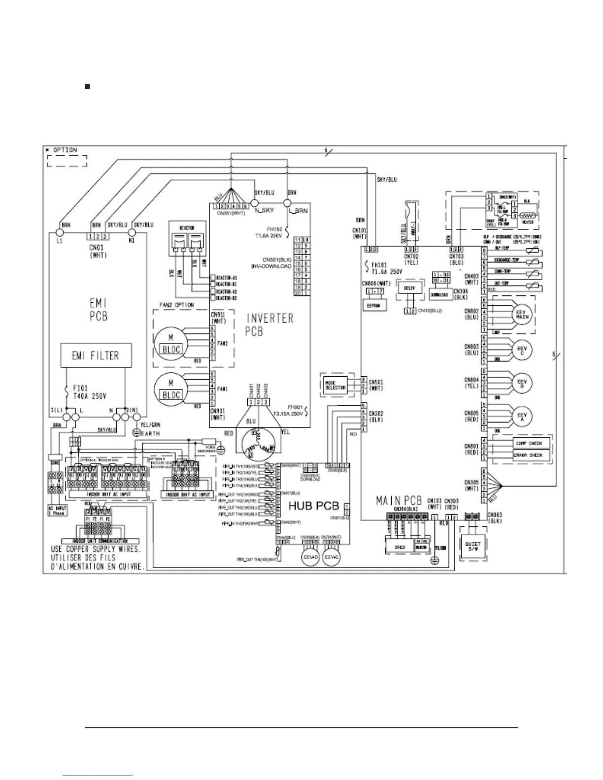
Samsung AJ024MCS4CH - Outdoor Unit Wiring Diagram (AJ***MCS*CH)

Samsung AJ024MCS4CH
92 pages
Print Icon
To Next Page IconTo Next Page
To Next Page IconTo Next Page
To Previous Page IconTo Previous Page
To Previous Page IconTo Previous Page
Loading...
Samsung Electronics6-10
#,/%5%*

Related product manuals