EasyManua.ls Logo

Samsung MH040FXEA2A - 6 Wiring Diagram; Indoor Unit

Samsung MH040FXEA2A
197 pages
Print Icon
To Next Page IconTo Next Page
To Next Page IconTo Next Page
To Previous Page IconTo Previous Page
To Previous Page IconTo Previous Page
Loading...
Samsung Electronics6-1
This Document can not be used without Samsung's authorization.
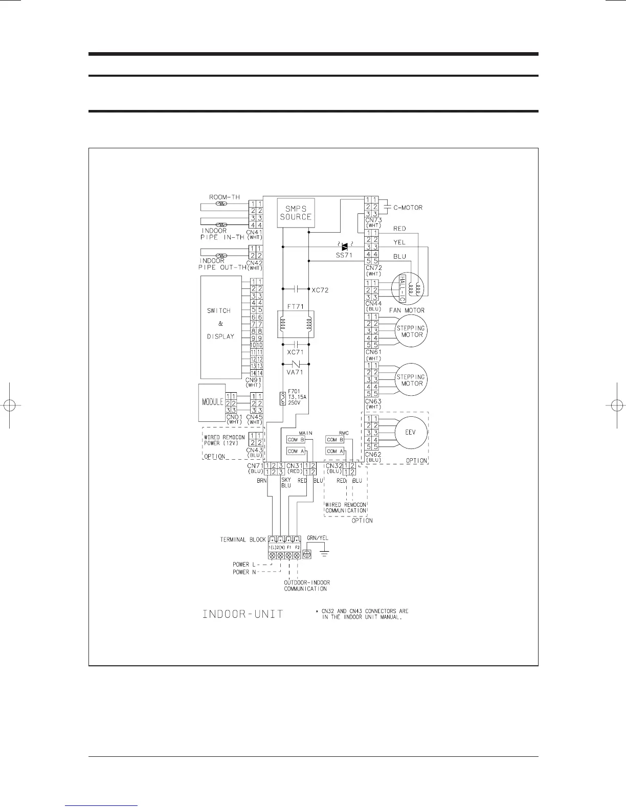
6. Wiring Diagram
6-1 Indoor Unit
MH✳✳✳FPEA /MH✳✳VP2-✳✳

Other manuals for Samsung MH040FXEA2A

Related product manuals